Appartement Dardilly 3 pièces Dernier etage Terrasse
Dardilly 69570
0
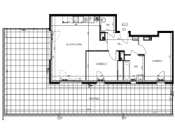
Dernière opportunité ! A visiter ! A Dardilly, je vous propose à la vente ce très beau T3 de 64m² situé au dernier étage avec sa magnifique terrasse dans une résidence de standing aux dernières normes comprenant : Une entrée, un séjour avec cuisine ouverte donnant sur une magnifique terrasse de 75m² , deux chambres, une salle de bain et un WC. Résidence contemporaine aux belles prestations intérieures Un stationnement double en sous-sol est vendu avec l'appartement. Bâtiment basse consommation, faibles charges Visuel non contractuel Merci de contacter votre conseiller pour plus d'informations Copropriété de 25 lots - dont 25 lots habitation. Charges annuelles : 1100 euros.