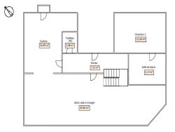
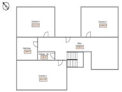
De particulier à particulier, appartement meublé de 142 m2 à louer à Audierne. Location de 5 pièces dont 4 chambres. Loyer charges incluses 980 euros. Libre immédiatement.
Avantages du logement :
- Grand séjour
- Cuisine équipée
- Cuisine indépendante
- Transport
- Salles de bain multiples
- Proche commerce
- Baignoire
Ce propriétaire utilise LocService pour sélectionner ses futurs locataires. Pour proposer directement votre candidature pour ce logement ET toutes les locations conformes à votre recherche, il suffit de vous inscrire sur LocService. Les propriétaires vous contactent directement et les locations sont certifiées sans frais d'agence.
Comment ça marche ?
1/ Vous décrivez votre location idéale sur LocService
2/ Votre candidature est transmise aux propriétaires concernés
3/ Les propriétaires vous contactent directement.
Vous réglez une seule fois 34 euros (29 euros pour les étudiants) pour toute la durée de votre recherche. Sans abonnement - Sans prélèvement - Sans commission.
Depuis sa création en 2005, LocService a accompagné plus de 2,8 millions de particuliers. Pourquoi pas vous ?
142 m²
5
4
1
Oui
Consommations énergétiques
Logement économe
180
Logement énergivore (kWhEP/m2/an)
Émissions de gaz à effet de serre
Faible émission de GES
30
Forte émission de GES(kgeqCO2/m2/an)
Contact LOCSERVICE
Contacter gratuitement à l'aide du formulaire ci-dessous.