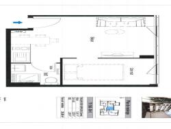
Appartement de 2 pièces (25 m²) à vendre à TOULOUSE Jardin des Plantes Sain
Toulouse 31400
0
À vendre à TOULOUSE (31400), ayez le coup de c?ur pour cet appartement entièrement rénové de 2 pièces de 25,08 m². Il propose une chambre et une cuisine américaine équipée.
Cet appartement se situe au 1er étage d'un immeuble de cinq étages avec ascenseur. Il est possible d'acquérir en plus une place de parking.
Côté transports, il y a la station de métro PALAIS DE JUSTICE (ligne B) dans un rayon de 1 km.
Découvrez toutes les originalités de cet appartement en vente en prenant RDV avec votre agence immobilière KW ADVANCE.
25 m²
6 400 €
2
1
1
Américaine
Consommations énergétiques
Logement économe
264
Logement énergivore (kWhEP/m2/an)
Émissions de gaz à effet de serre
Faible émission de GES
8
Forte émission de GES(kgeqCO2/m2/an)
Contact KW ADVANCE
Contacter gratuitement à l'aide du formulaire ci-dessous.