Appartement de 2 pièces de 48m2 et Balcon de 10m2 - Champign
Champigny-sur-Marne 94500
0
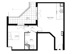
Découvrez ce très bel appartement de type 2 pièces, offrant des prestations de qualité et une localisation privilégiée. Espace de Vie Lumineux : Un séjour-cuisine ouvert de 28m2, baigné de lumière grâce à sa double exposition, et s'ouvrant sur un grand balcon de 10m2. Cuisine Aménagée : Cuisine entièrement équipée et ouverte sur le salon Chambre Spacieuse : Une grande chambre de 13m2 Une salle d'eau fonctionnelle. Rangements Optimisés : Nombreux rangements intégrés (placards et dressing). Finitions : Matériaux de qualité et finitions soignées. Environnement Idéal : Localisation de choix, à seulement 200 mètres du Parc du Tremblay et proche des bords de Marne.Commodités : Écoles et crèches accessibles à proximité immédiate. Lignes de bus 106, 317 et N71 au pied de la résidence.RER A (Joinville-le-Pont) et RER E (Les Boullereaux-Champigny) à moins de 15 minutes Double exposition pour une luminosité naturelle toute la journée. Localisation idéale, à 200 m du parc du Tremblay + Proche des bords de Marne +Écoles et crèches à proximité Idéalement desservi : lignes de bus 106, 317 et N71 au pied de la résidence, RER A (Joinville-le-Pont) et RER E (Les Boullereaux-Champigny) à moins de 15 min Contactez-nous dès aujourd'hui pour en savoir plus sur ce bien et organiser une visite Frais de notaires réduits, pas de frais d'agence Photos non contractuelles
48 m²
6 127 €
10 m²
2
1
1
1
2
1 (10 m²)
Consommations énergétiques
Logement économe
71
Logement énergivore (kWhEP/m2/an)
Émissions de gaz à effet de serre
Faible émission de GES
10
Forte émission de GES(kgeqCO2/m2/an)
Contact AMAR Denis
Contacter gratuitement à l'aide du formulaire ci-dessous.