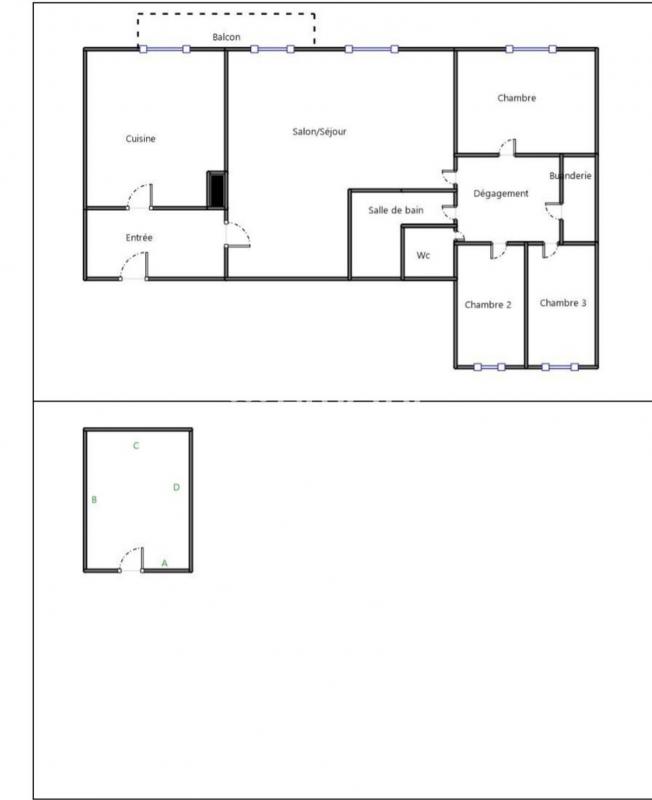
Appartement de 3 pièces de 63,95 m² situé à Épinay-sur-Seine
Épinay-sur-Seine 93800
0
Découvrez cet appartement situé au deuxième étage d'une résidence à Épinay-sur-Seine. D'une superficie de 63,95 m², il dispose de trois pièces agréables, parfaitement agencées. Profitez d'un balcon de 6 m², idéal pour vos moments de détente, d'une cave et d'un parking. La propriété, construite en 1965, a été bien entretenue, offrant un cadre de vie confortable et standard au quotidien et proche des commodités.
Dans le quartier, vous pourrez profiter d'un environnement verdoyant. Le Parc Sainte Jeanne est parfait pour vos promenades. De plus, les écoles se trouvent à proximité, dont l'École Victor Hugo et le Collège Georges Pompidou à 422 mètres.
Caractéristiques techniques :
- Mode de chauffage : Collectif
- Zone de stationnement : 1 place
Les informations sur les risques auxquels ce bien est exposé sont disponibles sur le site Géorisques : (http://www.georisques.gouv.fr/)
Intéressés ? Contactez Zefir pour visiter ce bien.