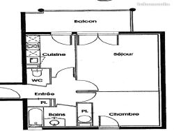
De particulier à particulier, appartement meublé de 43 m2 à louer à Lons. Location de 2 pièces dont 1 chambre. Loyer charges incluses 760 euros. Libre le 01/11/25.
Avantages du logement :
- Stationnement
Ce propriétaire utilise LocService pour sélectionner ses futurs locataires. Pour proposer directement votre candidature pour ce logement ET toutes les locations conformes à votre recherche, il suffit de vous inscrire sur LocService. Les propriétaires vous contactent directement et les locations sont certifiées sans frais d'agence.
Comment ça marche ?
1/ Vous décrivez votre location idéale sur LocService
2/ Votre candidature est transmise aux propriétaires concernés
3/ Les propriétaires vous contactent directement.
Vous réglez une seule fois 34 euros (29 euros pour les étudiants) pour toute la durée de votre recherche. Sans abonnement - Sans prélèvement - Sans commission.
Depuis sa création en 2005, LocService a accompagné plus de 2,8 millions de particuliers. Pourquoi pas vous ?
43 m²
2
1
1
Oui
Consommations énergétiques
Logement économe
250
Logement énergivore (kWhEP/m2/an)
Émissions de gaz à effet de serre
Faible émission de GES
11
Forte émission de GES(kgeqCO2/m2/an)
Contact LOCSERVICE
Contacter gratuitement à l'aide du formulaire ci-dessous.