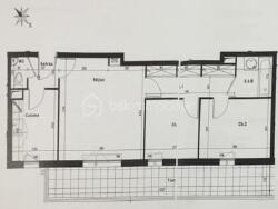
Coup de c?ur assuré pour ce très bel appartement de 3 pièces de 58.41m² Loi Carrez entièrement refait à neuf et sans vis à vis !
Le bien est composé d'une entrée avec penderie, d'une cuisine avec possibilité d'ouvrir sur le séjour, d'un couloir avec de grands placards, deux chambres de 8.40 et 9.91m², d'une salle de bain et d'une terrasse de 16m² orientée plein sud.
Un double emplacement de parking en enfilade ainsi qu'une cave viennent compléter ce bien.
Pour votre sécurité, la résidence est placée sous vidéo surveillance.
Le bien est situé dans le nouvel Ecoquartier de La Saussaie Beauclair.
A 200m de la station de métro Ligne 11 arrêt LA DHUYS et des CÔTEAUX BEAUCLAIR qui dessert Châtelet en 20 minutes.
A proximité des commerces, des écoles ( crèche, maternelle, primaire, collège ), du bus Titus pour la gare de Rosny Sous Bois ainsi que les axes routiers A3 et A86.
Un accès direct à pied pour vous rendre au Centre Commercial Domus et Leroy Merlin.
Je reste joignable 7j/7 au 06.52.05.15.94
BESOIN D'UN CONSEIL OU D'UNE ESTIMATION ?
Cette annonce référence 303159 vous est présentée par votre agent commercial BSK Immobilier BARIZA BOUDISSA (EI) immatriculé au RSAC de BOBIGNY (93000) sous le numéro 90143555200012.
Prix du bien : 295 000,00 €
Les honoraires d'agence sont à la charge du vendeur.
A propos de la copropriété :
Pas de procédure en cours.
Nombre de lots : 59
Charges prévisionnelles annuelles : 2 400,00 €
A propos des performances énergétiques :
Date de réalisation du diagnostic énergétique : 29/06/2023
Score DPE : 100 kWhEP/m²/an
Score GES : 18 kgepCO2/m²/an
Montant estimé des dépenses annuelles d'énergie pour un usage standard : entre 550.00 € et 790.00 € par an. Prix moyens des énergies indexés sur l'année 2021 (abonnements compris).
Les informations sur les risques auxquels ce bien est exposé sont disponibles sur le site Géorisques : www.georisques.gouv.fr
58 m²
5 086 €
3
2
1
1
5 sur 5
2007
Oui
Consommations énergétiques
Logement économe
100
Logement énergivore (kWhEP/m2/an)
Émissions de gaz à effet de serre
Faible émission de GES
18
Forte émission de GES(kgeqCO2/m2/an)
Contact Iad France - Bariza BOUDISSA
Contacter gratuitement à l'aide du formulaire ci-dessous.