Appartement de 6 pièces de 195 m² situé à Cazaubon
Cazaubon 32150
0
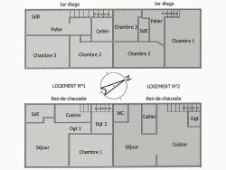
Découvrez ce complexe de 195 m², spécial investisseurs, comprenant deux appartements spacieux, agencés en duplexe, offrant un cadre de vie agréable et un studio à rénover en rez-de-jardin. Il comprend au total 9 pièces dont 6 chambres, parfait un investisseur cherchant à s'établir dans une ville renommée pour ses qualités thermales et touristiques. Les 2 logements sont actuellement loués. Possibilité à l'issue de produire des chambres ou appartement pour curistes.
Idéalement situé à Barbotan les Thermes, vous serez à proximité de nombreux lieux d'intérêt. À seulement 500 mètres des thermes et 600 mètres du centre ville parfait pour des promenades où vous trouverez des commerces et services de proximité.
Prévoir travaux de rénovation.
Caractéristiques techniques
- DPE : F
- Forte rentabilitée / rendement brut 8%
Les informations sur les risques auxquels ce bien est exposé sont disponibles sur le site Géorisques : (http://www.georisques.gouv.fr/)
Intéressés ? Contactez Zefir pour visiter ce bien.