##Space
Niché dans une résidence élégante du quartier d'Ainay, cet appartement spacieux et lumineux offre un cadre de vie agréable et paisible, à deux pas de la Presqu'île et de la Place Bellecour.
Vous profiterez d'un logement moderne, parfaitement équipé, avec des espaces communs chaleureux à partager.
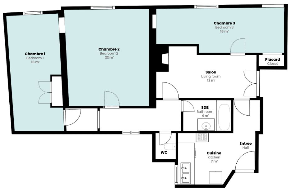
Votre chambre privative comprend :
Lit double confortable
Un espace de travail avec un bureau
Rangements
Accès aux espaces communs :
Un grand séjour convivial avec canapé, table à manger et table d'appoint
Une cuisine fermée et entièrement équipée : réfrigérateur, congélateur, micro-ondes, lave-vaisselle, grille-pain, bouilloire, machine à café? tout est prévu pour cuisiner comme à la maison
Une salle de bain avec baignoire et lavabo
Un WC séparé
Un lave-linge à disposition
Les atouts de cette colocation :
Connexion Internet haut débit (WiFi) incluse
Draps et serviettes de qualité fournis
Résidence moderne, calme et bien entretenue
Quartier résidentiel, sécurisé et très bien desservi
##Access
Vous aurez accès à votre chambre privée, ainsi qu'à tous les espaces communs (salon, cuisine, salle de bain, WC).
##Interaction
Notre équipe reste disponible chaque jour de 9h à 23h par téléphone ou SMS pour répondre à vos questions et veiller à ce que votre séjour se déroule dans les meilleures conditions.
Votre confort et votre satisfaction sont notre priorité.
## Neighborhood
Situé dans le prestigieux quartier d'Ainay, au c?ur du 2? arrondissement de Lyon, l'appartement bénéficie d'un emplacement exceptionnel : à la fois central, calme et très bien desservi.
Le secteur regorge de restaurants typiques, cafés, commerces, et se trouve à quelques minutes des quais du Rhône et de la Saône, idéals pour les balades.
À proximité immédiate :
Boulangeries, épiceries et supermarchés
Boutiques de la Presqu'île et centre commercial Confluence
Promenades le long des berges de Saône
Basilique Saint-Martin d'Ainay, Musée des Confluences
Quelques adresses recommandées à proximité :
Brasserie Georges ? iBrasserie emblématique de 1836 proposant plats lyonnais traditionnels et bière dans une grande salle à manger de style Art déco.
Tranche : €€
Café Comptoir Abel ? Restaurant historique au décor rétro connu pour ses plats classiques comme les quenelles de brochet au four.
Tranche : €€
Le Bistrot d'Abel ? bistrot typiquement lyonnais avec une cuisine de saison et une atmosphère chaleureuse.
Tranche : €€
## Transit
L'appartement bénéficie d'une excellente desserte en transports :
Métro A ? Station Ampère ? Victor Hugo à 3 minutes à pied
Métro D ? Station Bellecour à 8 minutes à pied
Tramway T1 ? Station Perrache à 10 minutes à pied
Nombreuses lignes de bus à proximité
Gare de Perrache à moins de 10 minutes à pied (TER, TGV et tramway)
##Notes
Cette réservation implique le versement d'une caution ainsi que la signature d'un contrat. Ces dispositions garantissent la sécurité et la transparence de votre séjour (tous les détails seront précisés lors de la réservation)
Updated on 03/10/2025
Mise à jour le 03/10/2025
87 m²
1
1
5
Contact Justine
Contacter gratuitement à l'aide du formulaire ci-dessous.