Honoraires à la charge de l'acquéreur (Prix hors honoraires : 150000 euros).
Le Groupe Souchez Immobilier vous propose en hyper centre d'Arras, à proximité des commerces et de la gare.
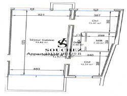
Un plateau de 90m² à aménager en totalité, situé au 2eme étage la superficie de ce bien vous permettra d'aménager à votre goût.
Un appartement avec une pièce de vie lumineuse de 53m2, une terrasse, 2 chambre, salle de bain, et un emplacement de stationnement pour votre véhicule.
Vous souhaitez plus de renseignements sur ce bien, contactez-nous.
Honoraires inclus de 10% TTC à la charge de l'acquéreur. Prix hors honoraires 150 000 . Non soumis au DPE. Les informations sur les risques auxquels ce bien est exposé sont disponibles sur le site Géorisques : georisques.gouv.fr. . Contactez votre Agence locale pour plus de renseignements ! 03 21 29 34 95
90.57 m²
1 822 €
53 m²
4
2
1
1
2
10 %
2
1
Contact SOUCHEZ IMMOBILIER - Agence de SOUCHEZ
Contacter gratuitement à l'aide du formulaire ci-dessous.