Idéalement situé en plein coeur de Dinard, au 1er et dernier étage d'une petite copropriété de seulement 4 lots, ce bien rare allie le cachet de l'ancien et le confort du moderne.
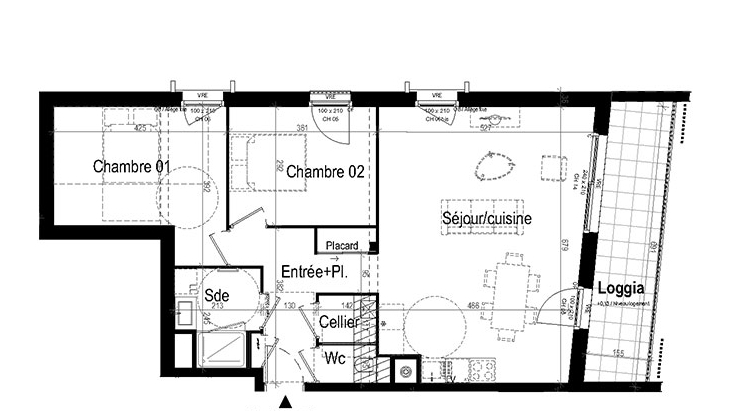
Entièrement rénové, cet appartement séduit par ses volumes, sa belle hauteur sous plafond et son parquet en bois d'origine. La distribution des pièces est la suivante, une entrée, une cuisine aménagée et équipée ouverte sur la salle à manger, un salon cosy avec cheminée, exposé sud, deux chambres confortables, et une salle d'eau avec WC. En complément, une grande cave de 30 m² offre un bel espace de stockage ou un potentiel supplémentaire à imaginer.
Un bien coup de coeur, au calme, à quelques pas des plages, du marché et de toutes les commodités.
Les informations sur les risques auxquels ce bien est exposé sont disponibles sur le site Géorisques : www. georisques. gouv. fr
64 m²
5 911 €
15 m²
3
2
1
1
1 sur 1
1910
Aménagée
Sud
Nord
Oui
Oui
Consommations énergétiques
Logement économe
510
Logement énergivore (kWhEP/m2/an)
Émissions de gaz à effet de serre
Faible émission de GES
98
Forte émission de GES(kgeqCO2/m2/an)
Contact THIERRY IMMOBILIER DINARD
Contacter gratuitement à l'aide du formulaire ci-dessous.