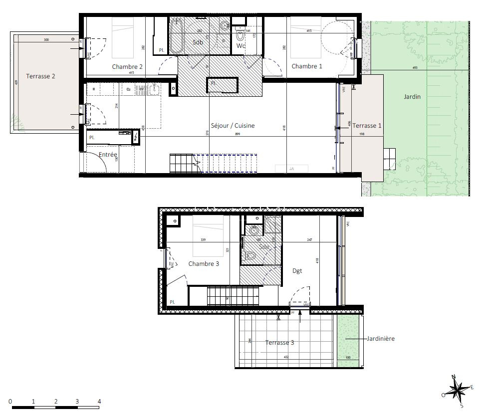
AU CENTRE DE CASTELNAU LE LEZ - Magnifique résidence de haut standing de seulement 9 appartements, proche de toutes commodités. Venez découvrir cet appartement haut de gamme de 93m2, type 3 pièces, comprenant une entrée avec placard, un vestiaire avec rangement, un séjour avec cuisine ouverte de 34 m2 équipée d'une arrière cuisine, le tout donnant sur la terrasse de 38 m2 exposée Est, côté nuit, une suite parentale de 19 m2 avec dressing et sa salle d'eau, une seconde chambre de 17 m2 avec grand placard, une salle d'eau avec WC. Un WC indépendant avec point d'eau. La terrasse est équipée d'un cellier. Prestations haut de gamme : Carrelage 120*120cm, climatisation gainable, cumulus thermodynamique... L'appartement est vendu avec deux places de parking privative et sécurisée et se situe au 1er étage sur 3 de la résidence. Investisseur : Pinel zone A. Livraison prévu 2ème Trimestre 2024. Pour plus de renseignements veuillez contacter Camille Egidio au 06 89 49 99 46
93.17 m²
6 440 €
33 m²
3
2
1 sur 3
Est
Oui
2
1
Oui
Oui
Contact Camille EGIDIO
Contacter gratuitement à l'aide du formulaire ci-dessous.