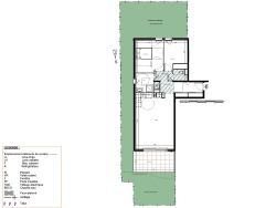
- LOTS DU T2 AU T3 DE DISPONIBLES, CONTACTEZ-NOUS - À Puget-Sur-Argens, découvrez ce domaine, au coeur d'un environnement résidentiel et végétalisé. Le domaine se trouve à seulement 15 min de Fréjus et 18 min de St Raphael en voiture. Le domaine est composé de villas, de duplex et d'appartements de standing. L'appartement en rez-de-jardin de 74,5 m2, se compose d'une entrée, d'un séjour cuisine de 32 m2, ouvrant sur une terrasse exposée sud de 12 m2, et d'un jardin de 76 m2. La partie nuit de l'appartement se compose de deux chambres de 12,96 m2 et de 10,23 m2. Une salle d'eau équipée, et un wc indépendant. Les + : Climatisation individuelle réversible par pompe à chaleur dans le séjour et les chambres, piscine privative pour les habitants du domaine. Livraison prévue 2ème trimestre 2023. Éligible Prêt à Taux 0% et dispositif PINEL.
74 m²
4 041 €
32 m²
3
2
1
1
Sud
1
Oui
Contact Boero Patrimoine
Contacter gratuitement à l'aide du formulaire ci-dessous.