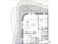
Au coeur de la Riviera des Alpes, au sein du projet emblématique des Nouveaux Thermes d'Aix-les-Bains, se dévoile un superbe T3 d'environ 74 m². Véritable trait d'union entre l'héritage Art déco de la ville et une vision futuriste signée par l'architecte Vincent Callebaut, ce lieu de vie unique redéfinit les codes de l'immobilier neuf haut de gamme. Situé à proximité immédiate des commerces, écoles et loisirs, ce futur quartier mixte offre un cadre de vie privilégié où tout est accessible à pied. L'appartement se distingue par une fluidité de circulation remarquable. Les baies vitrées s'ouvrent sur une terrasse spectaculaire de plus de 34 m². Véritable pièce supplémentaire, cet espace extérieur offre une vue imprenable à 180° sur le massif des Bauges, invitant à la contemplation en toute saison. Côté nuit, l'agencement optimise l'espace avec deux chambres confortables dont une avec salle d'eau. Une salle de bain complète l'ensemble. Espaces Atypiques propose également d'autres appartements allant du T1 au T6. Chacun dispose d'une terrasse végétalisée et d'une vue dégagée, selon les expositions, sur le Mont Revard, la Dent du Chat ou encore le lac du Bourget. Ce bien, livrable au 1er trimestre 2029, bénéficie des frais de notaire réduits. Bien non soumis au DPE. Les informations sur les risques auxquels ce bien est exposé sont disponibles sur le site Géorisques : www.georisques.gouv.fr. Contact : Antoine - 07 81 94 83 02 Copropriété de 236 lots - dont 236 lots habitation. Antoine de Longevialle (EI) Agent Commercial - Numéro RSAC : 988 747 465 - Chambéry.