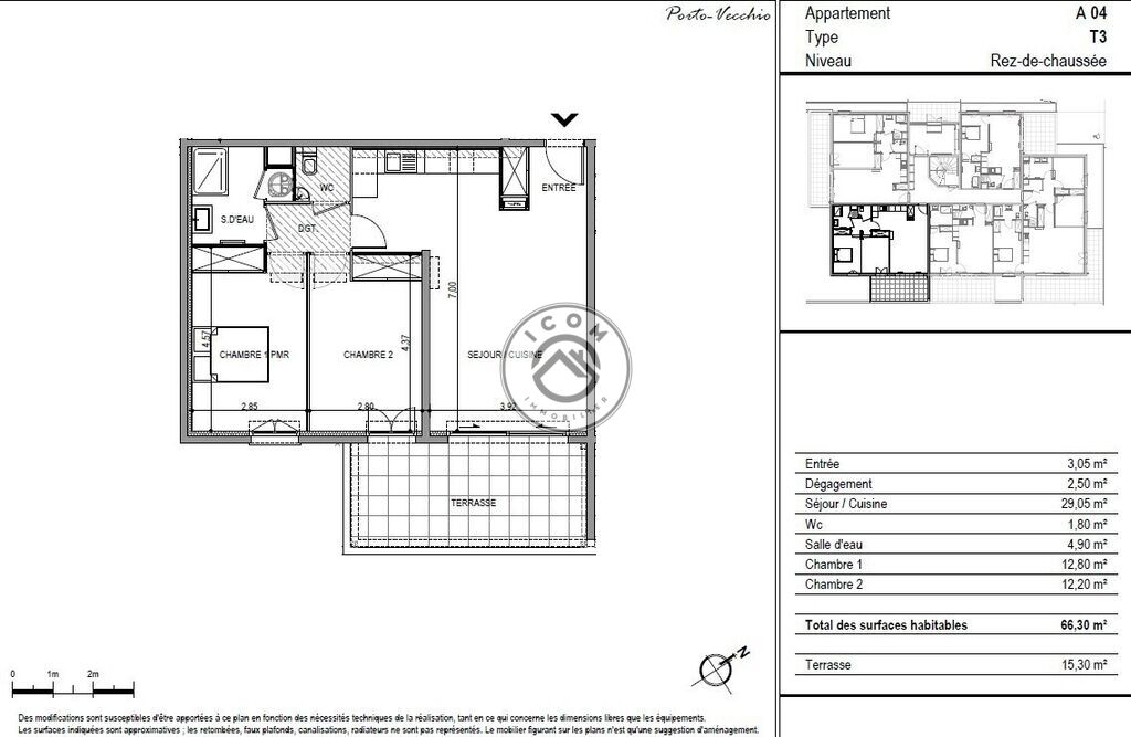
Situé à seulement quelques minutes à pieds du centre ville de Porto-Vecchio, cet appartement de type 3 allie calme, confort moderne et belle luminosité. D'une surface habitable de 64.23 m2, il se trouve au 2? étage d'un immeuble récent avec ascenseur. Dès l'entrée, vous serez séduit par la pièce de vie spacieuse et baignée de lumière, ouverte sur une grande terrasse de plus de 38 m2, exposée plein Sud. Cet espace extérieur, sans vis-à-vis, offre un cadre idéal pour vos repas d'été, vos moments de détente ou pour profiter des magnifiques couchers de soleil corses. La cuisine ouverte s'intègre harmonieusement au séjour, créant un espace convivial et fonctionnel. La partie nuit comprend deux chambres confortables, dont une équipée d'un grand placard intégré et l'autre disposant d'un balcon privatif. Une salle d'eau moderne et une buanderie complètent l'ensemble, offrant tout le confort nécessaire au quotidien. L'appartement est en excellent état, aucun travaux n'est à prévoir. Il est vendu avec une place de stationnement privative, située au pied de la résidence. La résidence Val Di Licci, construite en 2010, bénéficie d'un environnement soigné . Vous apprécierez sa situation idéale : à proximité immédiate des commerces, des écoles et des axes principaux menant aux plus belles plages de Corse du Sud, tout en profitant d'un cadre paisible. Disponible à partir du 17 Fevrier 2026
En résumé :
Appartement T3 de 64,23 m2 habitables
Terrasse de 38,18 m2 + balcon
Exposition Sud-Ouest, très lumineux
Résidence récente avec ascenseur
2 chambres, salle d'eau avec WC, buanderie
Place de stationnement privative
Aucun travaux à prévoir
Climatisation réversible dans le salon et les deux chambres
double vitrage avec volets roulants électriques
Notre coup de coeur Un appartement moderne, baigné de soleil et parfaitement entretenu, idéal pour une résidence principale, un pied-à-terre ou un investissement locatif à Porto-Vecchio.
64.23 m²
5 449 €
3
2
1
1
2
17/02/2026
103 € / mois
2010
Sud
Ouest
Oui
1
1
Oui
Consommations énergétiques
Logement économe
125
Logement énergivore (kWhEP/m2/an)
Émissions de gaz à effet de serre
Faible émission de GES
3
Forte émission de GES(kgeqCO2/m2/an)
Contact SAULI
Contacter gratuitement à l'aide du formulaire ci-dessous.