Appartement de type T2 avec Garage à Toulon Ouste dans une r
Toulon 83200
0
Honoraires à la charge du vendeur.
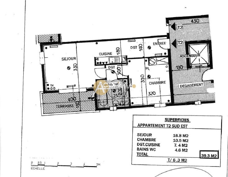
L'Agence Sud vous propose un appartement de type T2, situé au sein de la résidence Le Clos Rivière, dans le secteur de Toulon Ouest. D'une surface de 31 m2, ce bien, situé au 2ème étage avec ascenseur, se compose de la manière suivante :
Une entrée
Un séjour lumineux avec espace cuisine, ouvrant sur une terrasse de 6 m2 exposée plein sud
Une salle de bains avec baignoire
Une chambre avec rangements fonctionnels
Côté isolation, l'appartement est équipé de double vitrage et de volets roulants dans le séjour. Côté confort, une climatisation réversible assure le chauffage et la climatisation du logement. Un garage est vendu,avec l'appartement accessible directement par l'ascenseur de la résidence. Diagnostics de performance énergétique :
Consommation énergétique : 14 kWh/m2/an
Émissions de gaz à effet de serre (GES) : 5 kg CO?/m2/an
Estimation des coûts annuels d'énergie : entre 520 EUR et 740 EUR Charges de copropriété : 102 EUR / mois, comprenant l'entretien des parties communes et de l'ascenseur. Chauffage et eau chaude non compris dans les charges. Taxe foncière : 1 065 EUR Prix affiché honoraires inclus Honoraires à la charge du vendeur.
33 m²
4 970 €
15 m²
2
1
1
1
110 € / mois
2000
Sud
Est
Oui
1
1
Oui
Oui
Oui
Consommations énergétiques
Logement économe
147
Logement énergivore (kWhEP/m2/an)
Émissions de gaz à effet de serre
Faible émission de GES
5
Forte émission de GES(kgeqCO2/m2/an)
Contact de Coccola
Contacter gratuitement à l'aide du formulaire ci-dessous.