À découvrir sans tarder !
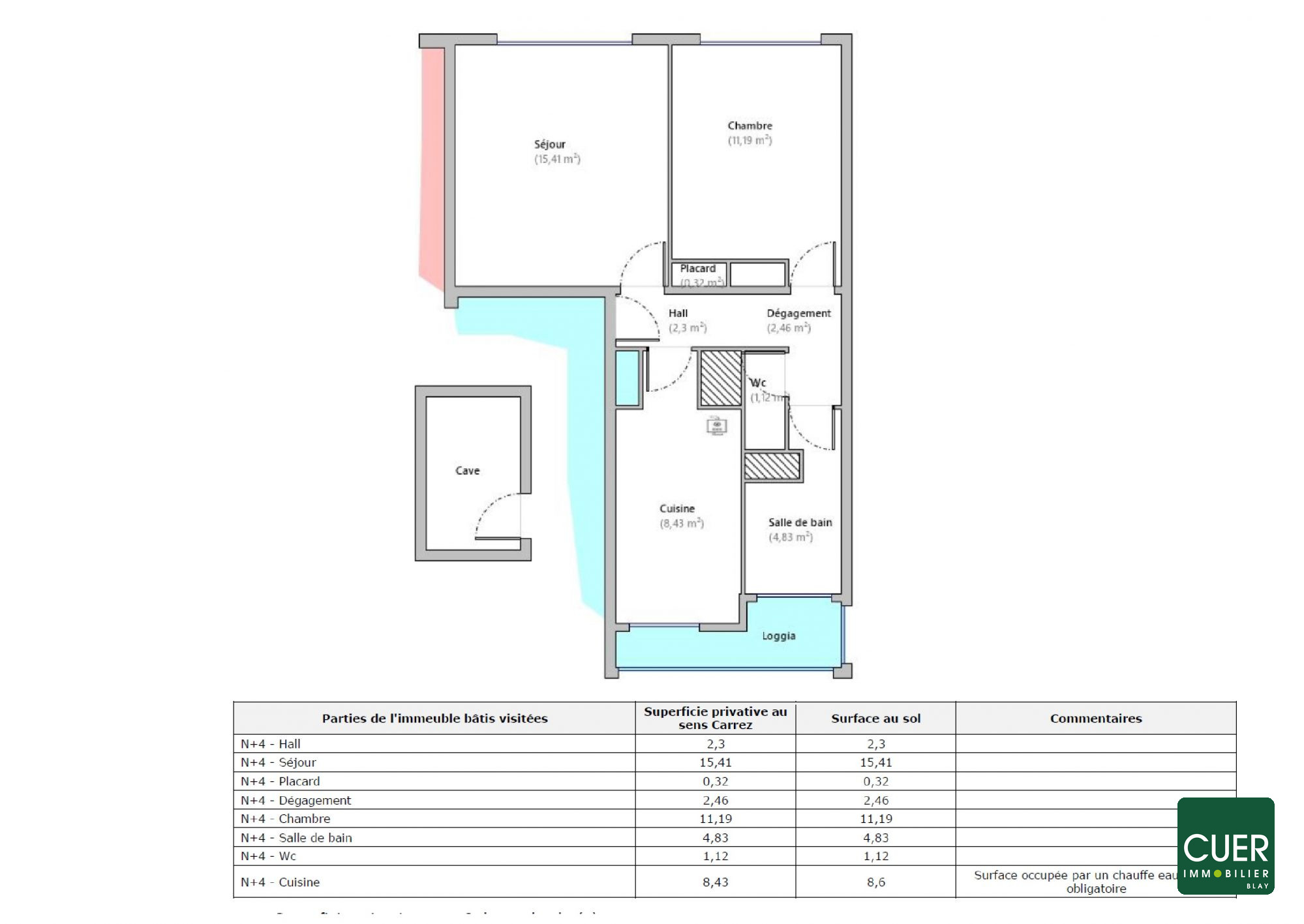
Bel appartement de type T3, deux chambres, cuisine aménagée ouverte sur le séjour, salle de douche et WC séparé. L'appartement se trouve au premier étage de la résidence et est orienté ouest, face aux montagnes des alentours. Il est vendu meublé et est libre de gestion.
Cette annonce référence 276706 vous est présentée par votre agent commercial BSK Immobilier CÉCILE GODBILLON (EI) immatriculé au RSAC de ROMANS-SUR-ISERE (26100) sous le numéro 88485015700014.
Prix du bien : 83 000,00 €
Les honoraires d'agence sont à la charge du vendeur.
A propos de la copropriété :
Pas de procédure en cours.
Nombre de lots : 100
Charges prévisionnelles annuelles : 1 800,00 €
A propos des performances énergétiques :
Date de réalisation du diagnostic énergétique : 07/03/2025
Score DPE : 247 kWhEP/m²/an
Score GES : 7 kgepCO2/m²/an
Montant estimé des dépenses annuelles d'énergie pour un usage standard : entre 760.00 € et 1070.00 € par an. Prix moyens des énergies indexés sur l'année 2023 (abonnements compris).
Les informations sur les risques auxquels ce bien est exposé sont disponibles sur le site Géorisques : www.georisques.gouv.fr
37 m²
2 243 €
3
2
Consommations énergétiques
Logement économe
247
Logement énergivore (kWhEP/m2/an)
Émissions de gaz à effet de serre
Faible émission de GES
7
Forte émission de GES(kgeqCO2/m2/an)
Contact Iad France - Cécile GODBILLON
Contacter gratuitement à l'aide du formulaire ci-dessous.