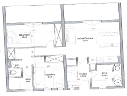
Sur la commune de Grimaud, dans une résidence sécurisée avec parc paysager et piscine, appartement type 3 de 55,47 m2 (loi Carrez) avec 2 loggias de 14 m2 au total et 2 places de parking provatives. Entrée avec coin cabine, séjour avec coin cuisine, 2 chambres, 2 salles d'eau, wc Idéal résidence secondaire, investissement locatif Les informations sur les risques auxquels ce bien est soumis sont disponibles sur le site géorisques : www.georisques.gouv.fr
55.47 m²
5 228 €
14 m²
18 m²
3
2
2
1
1 sur 1
2 (14 m²)
2
Oui
Oui
Oui
Consommations énergétiques
Logement économe
217
Logement énergivore (kWhEP/m2/an)
Émissions de gaz à effet de serre
Faible émission de GES
6
Forte émission de GES(kgeqCO2/m2/an)
Contact AGENCE LE GAC
Contacter gratuitement à l'aide du formulaire ci-dessous.