Les charges de location sont prévisionnelles mensuelles avec régularisation annuelle.
La part des honoraires pour la réalisation de létat des lieux de ce bien est de 56.8 euros.
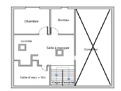
Appartement de 28.40m2 situé au 2ème étage sous les toits à Bretenoux (Lot), comprenant : Au 1er étage, porte d'entrée privative avec escalier desservant le logement au 2ème étage : Pièce de vie avec coin cuisine, Bureau, Chambre, Salle d'eau avec cabine de douche, lavabo et WC. Chauffage et eau chaude électrique. Les informations sur les risques auxquels ce bien est exposé sont disponibles sur le site Géorisques : www.georisques.gouv.fr IMMOTECH Agence immobilière, spécialiste dans la Vallée de la Dordogne, de la Corrèze et du Lot
28.4 m²
6 m²
3
1
1
1
2 sur 2
142 %
18.71 € / mois
1970
Oui
Consommations énergétiques
Logement économe
326
Logement énergivore (kWhEP/m2/an)
Émissions de gaz à effet de serre
Faible émission de GES
10
Forte émission de GES(kgeqCO2/m2/an)
Contact CGP IMMO
Contacter gratuitement à l'aide du formulaire ci-dessous.