Appartement dernier étage avec vue imprenable centre-ville d
Porto-Vecchio 20137
0
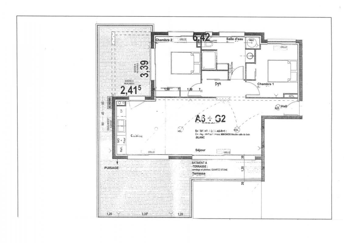
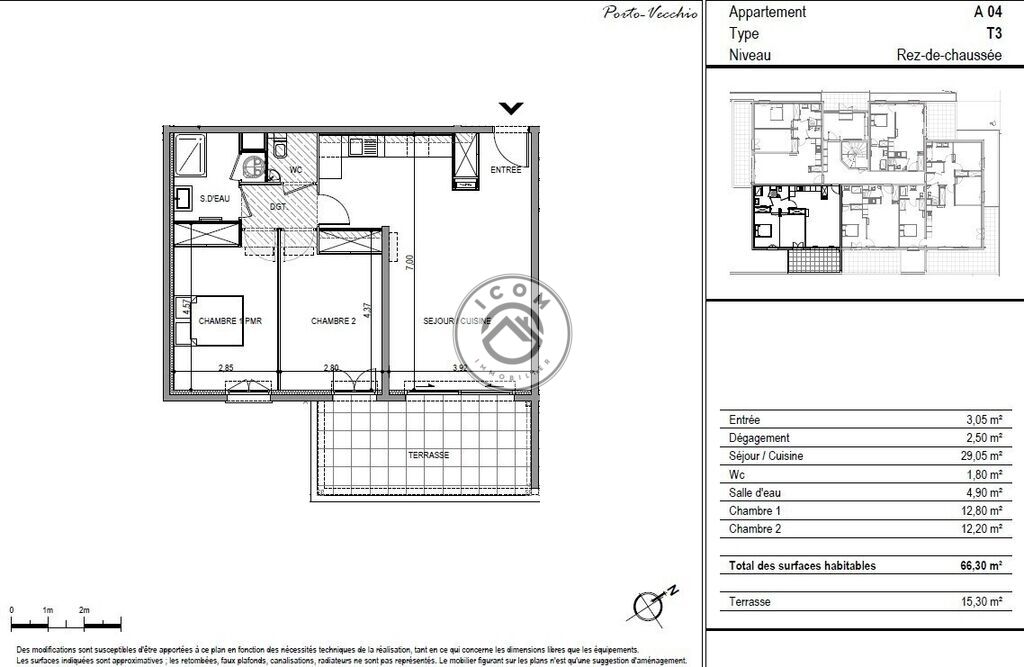
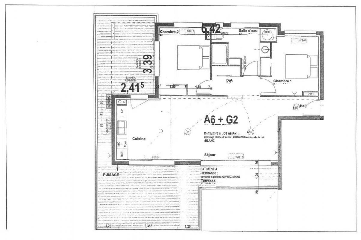
Corse Patrimoine Immobilier vous propose à la vente un magnifique appartement de 66 m2 situé au dernier étage d'un immeuble récent, offrant des prestations de haute qualité et une vue panoramique sur le centre-ville de Porto-Vecchio.
Ce bel appartement se compose d'un espace de vie agréable et aéré, un salon, salle à manger et cuisine aménagée, avec des grandes baies vitrées offrant une luminosité exceptionnelle. Côté nuit, deux chambres avec rangements et accès direct à une superbe terrasse en bois de 75 m2 qui fait le tour complet de l'appartement, idéale pour profiter des beaux jours. Une salle d'eau, et un WC indépendant.
Le bien est vendu avec une place de parking privative.
Idéalement situé au pied du centre ville historique, proche du port et des commodités. A 25 minutes de l'aéroport de Figari, 15 minutes des plages de St Cyprien et Santa Giulia.
Les informations sur les risques auxquels ce bien est exposé sont disponibles sur le site Géorisques : www.georisques.gouv.fr
66 m²
6 985 €
29 m²
3
2
1
1
6 sur 6
2012
Américaine
Sud
Ouest
Oui
Oui
Consommations énergétiques
Logement économe
119
Logement énergivore (kWhEP/m2/an)
Émissions de gaz à effet de serre
Faible émission de GES
3
Forte émission de GES(kgeqCO2/m2/an)
Contact Corse Patrimoine Immobilier
Contacter gratuitement à l'aide du formulaire ci-dessous.