Appartement deux pièces vendu avec locataire en place
Eysines 33320
0
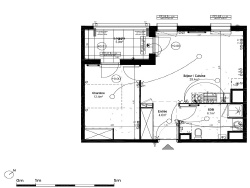
EXCLUSIVITÉ SQUARE & HASHFORD EYSINES, Appartement vendu avec locataire en place, situé au 129 avenue de Magudas A proximité du Tram A (arrêt Les Pins), bus et accès rocade. Appartement vendu avec locataire en place. Eysines, au sein d'une copropriété bien entretenue datant de 2016, composée de 55 lots à usage d'habitation, découvrez cet appartement deux pièces vendu loué situé au premier étage avec ascenseur composé d'une pièce à vivre avec cuisine ouverte donnant sur un balcon de 6 m2, une vaste chambre avec placards de rangement, salle d'eau avec WC. Une place de stationnement privative en extérieur est également vendue avec l'appartement. Bail en date du : 10/03/2023, location nue. Loyer : 636,76 EUR par mois charges comprises dont 39,50 EUR de provisions sur charges. Taxe foncière : 895 EUR Charges de copropriété annuelles : 489,91 EUR DPE C. Estimation des coûts annuels d'énergie entre 474 EUR et 642 EUR. Honoraires à la charge du vendeur. Pour plus d'informations sur les risques liés à ce bien : www.georisques.gouv.fr
42.9 m²
3 261 €
6 m²
20 m²
2
1
1
1
1 sur 3
43 € / mois
2016
Ouest
Nord
1 (6 m²)
Oui
1
Oui (110 lots)
Consommations énergétiques
Logement économe
92
Logement énergivore (kWhEP/m2/an)
Émissions de gaz à effet de serre
Faible émission de GES
17
Forte émission de GES(kgeqCO2/m2/an)
Contact Square Et Hashford
Contacter gratuitement à l'aide du formulaire ci-dessous.