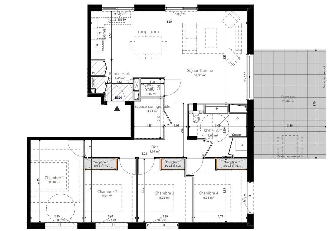
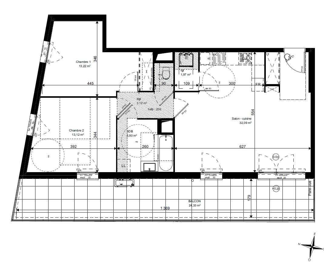
AMILTONE IMMOBILIER vous propose cet appartement 'COUP DE COEUR' idéalement située au coeur du joli village de Blacé dans une belle batisse en pierres dorées, à proximité immédiate des commerces et de l'école. A seulement 10 minutes de Villefranche, ce duplex de 114m2 a été entièrement rénové en 2021. Il se compose d'une grande pièce de vie de 54m2 avec cuisine entièrement aménagée donnant sur une terrasse de 32m2, d'un cellier buanderie et d'un wc. A l'étage, un dégagement dessert une suite parentale avec sa salle d'eau privative, 2 chambres,une salle de bains avec WC. 2 Places de stationnement complètent ce bien. DPE B - GES A. Aucun travaux à prévoir, le bien est parfaitement entretenu A découvrir rapidement Contact : Marie GAUTHIER au 06 60 59 59 80, agent immobilier titulaire de la carte professionnelle No 03723 délivrée par la CCI de l'Ain 'Les informations sur les risques auxquels ce bien est exposé sont disponibles sur le site Géorisques http://georisques.gouv.fr
114 m²
2 974 €
54 m²
4
3
1
1
2
1948
Nord
2
1
Oui
Oui
Consommations énergétiques
Logement économe
104
Logement énergivore (kWhEP/m2/an)
Émissions de gaz à effet de serre
Faible émission de GES
3
Forte émission de GES(kgeqCO2/m2/an)
Contact GAUTHIER Marie
Contacter gratuitement à l'aide du formulaire ci-dessous.