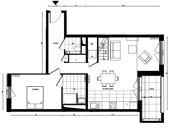
Superbe Duplex 4 Pièces - 100m2 avec 2 Loggias Idéalement situé à proximité des commerces, crèches et écoles, ce duplex de 100m2 est parfaitement desservi par les transports en commun (métro 4 et 12, tramway T3b). Description :
1er niveau : Entrée avec wc invités, placard, une chambre avec salle d'eau, séjour-cuisine avec loggia. 2nd niveau : 2 chambres, une loggia, une salle d'eau et wc indépendant.
Prestations haut de gamme :
Parquet massif Volets roulants électriques Salles de bains aménagées Placards aménagés Habitat HQE avec normes thermiques et isolation phonique performante
Avantages :
Frais de notaire réduits Faibles charges Proche de toutes commodités
Pour plus d'informations ou pour organiser une visite, contactez notre agence, joignable 7/7.
Duplex
99.2 m²
10 978 €
4
3
2
2
3
Est
Oui (37 lots)
Consommations énergétiques
Logement économe
71
Logement énergivore (kWhEP/m2/an)
Émissions de gaz à effet de serre
Faible émission de GES
10
Forte émission de GES(kgeqCO2/m2/an)
Contact AMAR Denis
Contacter gratuitement à l'aide du formulaire ci-dessous.