Appartement Duplex F3 2023 bord du canal 2 terrasses parking
Bobigny 93000
0
Un écrin de confort et de modernité aux portes de Paris
Présentation générale
Situé au bord du canal de l'Ourcq dans une résidence sécurisée édifiée en 2023, à seulement 10 min à pied du métro ligne 5 Pablo Picasso, ce superbe appartement de trois pièces en DUPLEX d'une surface de 63 m² offre un cadre de vie privilégié, moderne et fonctionnel. Parfaitement exposé à l'ouest, il se trouve au rez-de-chaussée sans voisin au-dessus, invitant la lumière naturelle à sublimer chaque espace. RARE : deux terrasses, parking boxable en sous-sol.
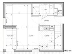
Agencement et espaces
En bas :
? Entrée avec placard, idéale pour optimiser le rangement dès l'arrivée
? Séjour lumineux avec cuisine ouverte de marque allemande sur mesure (23 m²) avec hauteur sous plafond exceptionnelle de 2,75m
? Terrasse SUD ? OUEST (3,30m²) sans vis-à-vis
? Salle d'eau avec WC (4,45m²)
En haut :
? Palier avec placard
? Deux chambres avec placard (11,40 / 10,85m²)
? Terrasse SUD ? OUEST (2,70m²) avec vue sur le canal
? Salle de bains (5,30m²)
? WC
Cave et parking en sous-sol
Local vélo, local poussette. BONUS pour les copropriétaires : deux salles communes privatisables, terrasse commune privatisable sur le toit avec vue exceptionnelle !
Prestations et confort
? Chauffage au gaz par chaudière collective avec compteur individuel, garantissant une maîtrise des consommations
? Double vitrage PVC et volets roulants électrique en domotique
? Isolation THERMIQUE et PHONIQUE
? Alarme
? Diagnostics énergétiques performants (DPE C)
Environnement et accessibilité
Profitant de toutes les commodités à pied, idéalement situé au bord du canal de l'Ourcq, à 2 min du parc de la Bergère, cet appartement bénéficie d'un accès rapide au métro existant ligne 5 Pablo Picasso et au futur métro ligne 15 Pont de Bondy : la Gare du Nord est accessible en seulement 20 min facilitant les déplacements vers le c?ur de Paris et ses environs.
Informations financières
? Prix de vente : 320 000 € (honoraires d'agence à la charge du vendeur)
? Taxe foncière : 1 590 €
? Charges mensuelles : 144 € (incluant eau chaude/froide, chauffage, syndic, ascenseur, etc.)
? Charges prévisionnelles annuelles : 1736 €
Copropriété
? Résidence de 182 lots principaux
? Pas de procédure en cours
? Nombre de lots annoncés : 3
À qui s'adresse ce bien ?
Que l'on soit primo-accédant ou investisseur, ce bien convient parfaitement aux personnes en quête d'un appartement moderne, sécurisé et facile à rentabiliser, notamment en location courte durée. Sa localisation privilégiée et ses prestations haut de gamme en font une opportunité rare sur le marché.
Conclusion
Envie d'investir ou de fonder votre famille dans une résidence moderne vivante avec une vrai vie de quartier, le canal comme environnement et toutes les commodités à pied ? Une visite s'impose pour découvrir le confort, la luminosité et la modernité qu'offre cet appartement F3 en DUPLEX. Entre accessibilité, rentabilité et qualité de vie, ce bien réunit tous les atouts pour séduire les membres à la recherche d'un nouveau chez-soi ou d'un investissement performant.
Ludovic MOREL
Votre Partenaire Immobilier
Depuis 2010
+++
Cette annonce référence 301139 vous est présentée par votre agent commercial BSK Immobilier LUDOVIC MOREL (EI) immatriculé au RSAC de BOBIGNY (93000) sous le numéro 91259345600029.
Prix du bien : 320 000,00 €
Les honoraires d'agence sont à la charge du vendeur.
A propos de la copropriété :
Pas de procédure en cours.
Nombre de lots : 3
Charges prévisionnelles annuelles : 1 740,00 €
A propos des performances énergétiques :
Date de réalisation du diagnostic énergétique : 02/02/2023
Score DPE : 77 kWhEP/m²/an
Score GES : 15 kgepCO2/m²/an
Montant estimé des dépenses annuelles d'énergie pour un usage standard : entre 440.00 € et 660.00 € par an. Prix moyens des énergies indexés sur l'année 2021 (abonnements compris).
Les informations sur les risques auxquels ce bien est exposé sont disponibles sur le site Géorisques : www.georisques.gouv.fr
63 m²
5 079 €
3
2
1
1
2
2023
Sud
Ouest
Oui
Oui
Consommations énergétiques
Logement économe
77
Logement énergivore (kWhEP/m2/an)
Émissions de gaz à effet de serre
Faible émission de GES
15
Forte émission de GES(kgeqCO2/m2/an)
Contact LUDOVIC MOREL
Contacter gratuitement à l'aide du formulaire ci-dessous.