Appartement duplex T5 de 133m² dernier étage - Paris 15ème
Paris 75015
0
Honoraires à la charge du vendeur.
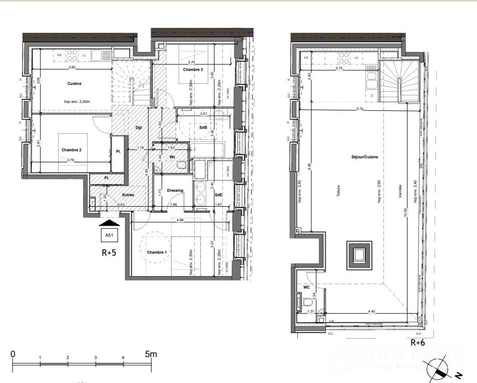
Appartement duplex T5 de 133m² dernier étage - 5 et 6ème étage sur 6 Dans une résidence d'appartements d'exception à Paris XVème Euporia Immobilier vous propose des appartements de standing sur Paris XV
Prix : 2 850 000
Disponible T3 2026
l'appartement comprend: - séjour de 53m2, extrêmement lumineux avec verrière - 4 chambres (14,82m2, 12,70m2, 12,53m2 et 11,56m2) - la chambre parentale de 14,82m2 comprend dressing et SDE - SDB - Véranda attenante au séjour cuisine de 15,11m2 - Chauffage au sol
Au coeur du 15ème arrondissement de Paris, découvrez cette résidence de standing, dans un quartier alliant le dynamisme de la rue Lecourbe et ses commerçants avec le charme et la vie culturelle du 6ème et du 7ème arrondissements.
-Prestations haut de Gamme Accès : - Proximité de toutes les commodités - Emplacement d'exception
Nous contacter pour tous éléments complémentaires : détails, plans, prestations et autres. Les Honoraires réduits sont à la charge du vendeur et inclus dans le prix de vente. EUPORIA IMMOBILIER - présent sur PARIS & LYON - Carte professionnelle CPI 6901 2021 000 000 166 CCI LYON Métropole SAINT ETIENNE ROANNE. RCS LYON 903 566 099.
Honoraires à la charge du vendeur. Dans une copropriété de 35 lots. Quote-part moyenne du budget prévisionnel 1 /an. Aucune procédure n'est en cours. Non soumis au DPE. Les informations sur les risques auxquels ce bien est exposé sont disponibles sur le site Géorisques : georisques.gouv.fr.
133 m²
21 429 €
53 m²
5
4
1
1
1 (séparé)
6 sur 6
Oui
Oui
Oui
1
Oui
Oui (35 lots)
Contact EUPORIA
Contacter gratuitement à l'aide du formulaire ci-dessous.