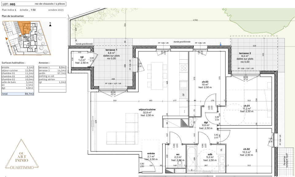
Nous sommes heureux de vous proposer à la vente ce très bel appartement de 4/5 pièces entièrement rénové, au coeur de Truchtersheim.
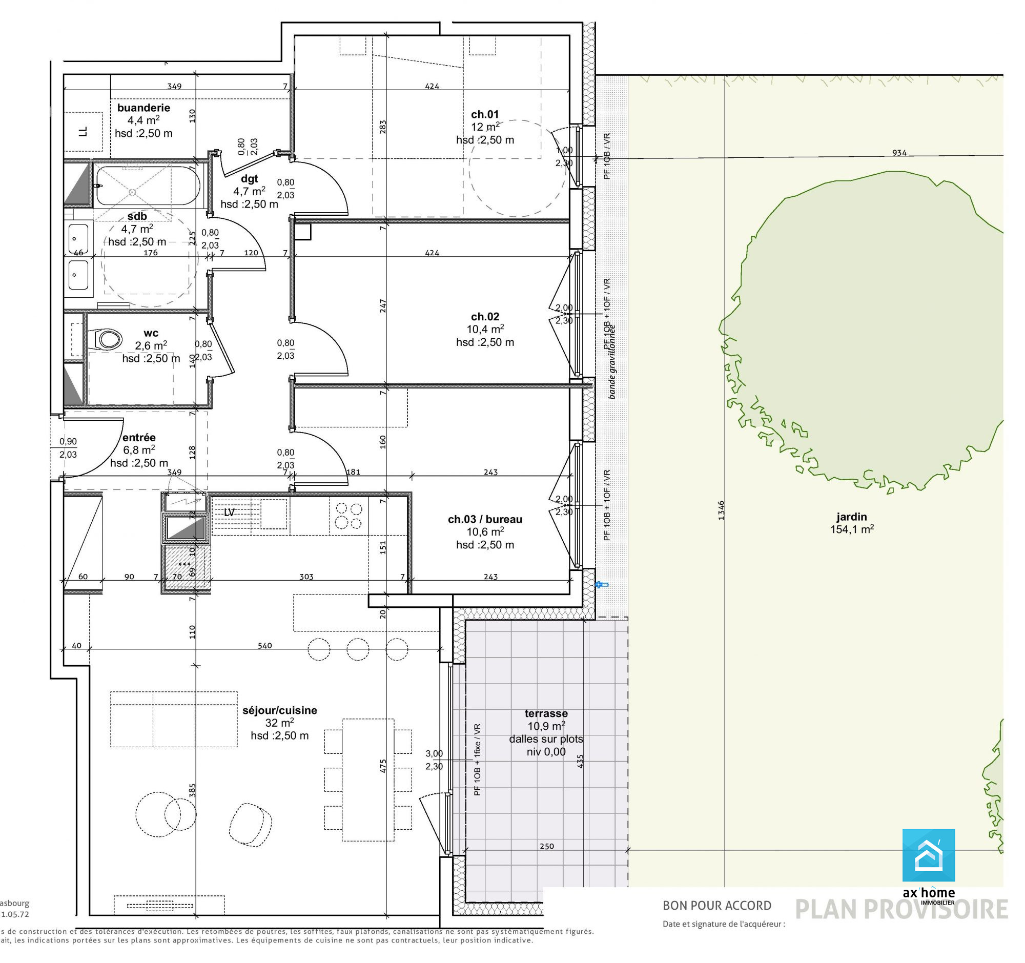
Situé au 1er étage d'une petite copropriété de 12 lots, ce grand duplex de 132 m² se compose d'une très grande pièce de vie lumineuse et ouverte sur une cuisine américaine à aménager, de 3 belles chambres et d'une SDB entièrement équipée avec douche à l'italienne et baignoire.
Les 2 WC, installés au 1er et au 2è étage du duplex, sont séparés.
Deux terrasses complètent ces prestations pour vous offrir une vue dégagée, quand bien même vous vous trouvez proche de toutes les commodités.
Pas encore convaincu ? L'appartement est vendu avec un local de 33 m² aménageable selon vos besoins.
Vous disposerez également d'une cave, d'un garage de 27 m² et d'une place de parking située en extérieur.
Honoraires à la charge du vendeur. Dans une copropriété de 12 lots. Quote-part moyenne du budget prévisionnel 700 /an. Aucune procédure n'est en cours. Classe énergie C, Classe climat A Montant moyen estimé des dépenses annuelles d'énergie pour un usage standard, établi à partir des prix de l'énergie de l'année 2021 : entre 870.00 et 1230.00 . Les informations sur les risques auxquels ce bien est exposé sont disponibles sur le site Géorisques : georisques.gouv.fr.
Carte pro. CPI67012018000023425
132 m²
2 949 €
4
3
1
2 (séparés)
1
01/12/2023
1947
2
Oui
1
1
Oui
Oui (12 lots)
Consommations énergétiques
Logement économe
110
Logement énergivore (kWhEP/m2/an)
Émissions de gaz à effet de serre
Faible émission de GES
3
Forte émission de GES(kgeqCO2/m2/an)
Contact Anova
Contacter gratuitement à l'aide du formulaire ci-dessous.