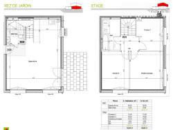
CLENAY, à 10 mn de DIJON, PROGRAMME NEUF, VENTE EN ETAT FUTUR D'ACHEVEMENT dans un quartier calme, un appartement en duplex de type 4 exposé Sud et Ouest et comprenant : Au rez-de-chaussée : un espace de vie avec coin cuisine, une salle d'eau avec un W.C. Au premier étage : une salle de bain, un dégagement, une chambre principale et deux chambres. Cet appartement bénéficie d'une terrasse privative d'une surface de 11m² environ et d'un jardin jouissance privative avec portillon, d'une surface de 76m² environ, exposé Sud et Ouest Garage individuel et place de parking privatif. Proches des commerces et accès autoroute.
Honoraires à la charge du vendeur. Dans une copropriété de 35 lots. Aucune procédure n'est en cours. Non soumis au DPE. Les informations sur les risques auxquels ce bien est exposé sont disponibles sur le site Géorisques : georisques.gouv.fr.
Votre conseiller La Maison GLM : Elisabeth Fernandes Agent commercial (Entreprise individuelle) RSAC 982294266 RSAC Dijon RCP Galian . Plus d'éléments et visuels disponibles sur notre site internet ! Lamaisonglm.fr
Duplex
93.85 m²
3 186 €
40 m²
4
3
1
1
2
31/12/2026
2025
1
1
1
Oui (35 lots)
Contact La Maison Galimard Levacon Monnier
Contacter gratuitement à l'aide du formulaire ci-dessous.