APPARTEMENT F2 DE 47m2 REZ DE CHAUSSEE AVEC PETITE TERRASSE
Ouistreham 14150
0
Les charges de location sont prévisionnelles mensuelles avec régularisation annuelle.
La part des honoraires pour la réalisation de létat des lieux de ce bien est de 142.28 euros.
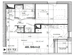
OUISTREHAM - RESIDENCE RECENTE - Appartement de type 2 pièces sis au rez de chaussée de 46.96 m2 habitables comprenant une entrée,une cuisine aménagée, un séjour, une salle de douches, une chambre, un wc indépendant, une petite terrasse de 3 m2 et parking EXTERIEUR. Classe énergie: B. Bien soumis à des plafonds de ressources - Dispositif PINEL- chauffage individuel gaz- Belles prestations. Disponible le 26/06/2026. DG 595 EUR. Honoraires à la charge du locataire 521.25EUR TTC dont 142.28 EUR ttc pour l'état des lieux d'entrée. Modalité de récupération des charges locative : provisions avec régularisation annuelle.
Pour candidater, déposez votre dossier sur cette annonce depuis notre site internet cabinetquesnee
Les informations sur les risques auxquels ce bien est exposé sont disponibles sur le site georisques.gouv.fr
QUESNEE IMMOBILIER, gestionnaire locatif à CAEN, 02.31.34.08.50
46.96 m²
3 m²
24 m²
2
1
1
1
521.25 %
26/06/2026
45 € / mois
2019
Ouest
1 (3 m²)
Oui
1
Oui
1
Oui
Oui (34 lots)
Consommations énergétiques
Logement économe
71
Logement énergivore (kWhEP/m2/an)
Émissions de gaz à effet de serre
Faible émission de GES
16
Forte émission de GES(kgeqCO2/m2/an)
Contact Cabinet Quesnee Immobilier
Contacter gratuitement à l'aide du formulaire ci-dessous.