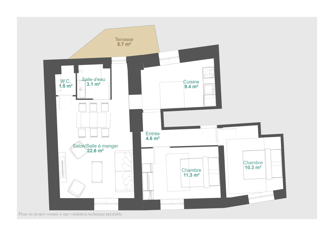
Lumineux appartement de type F3 avec balcon, situé au 2ème étage d'une résidence de 2015 avec accès sécurisé. Entrée, cuisine aménagée et équipée ouverte sur séjour, 2 chambres, salle d'eau, wc séparés. Accès direct au balcon depuis le séjour. 2 places de stationnement en sous-sol. Annonce rédigée et publiée par une agence immobilière juridiquement et financièrement indépendante, adhérente au réseau de Meilleur Conseil Immo - RCS Melun 821 414 43 - Garantie Financière : SOCAF, 25 avenue de Suffren, 75015 PARIS.
Honoraires à la charge du vendeur. Dans une copropriété de 73 lots. Quote-part moyenne du budget prévisionnel 2 760 /an. Aucune procédure n'est en cours. Classe énergie C, Classe climat C Montant estimé des dépenses annuelles d'énergie pour un usage standard : entre 430.00 et 630.00 sur les années 2021, 2022 et 2023 (abonnements compris). Les informations sur les risques auxquels ce bien est exposé sont disponibles sur le site Géorisques : georisques.gouv.fr.
Votre conseiller IPSL IMMO : IPSL IMMO - Sebastien LEROY Carte T 7702 2016 000 010 402 RCP MMA ENTREPRISE