Honoraires à la charge de l'acquéreur (Prix hors honoraires : 2700000 euros).
PARIS 8 - AVENUE HOCHE -
Une situation géographique exceptionnelle et une résidence de standing.
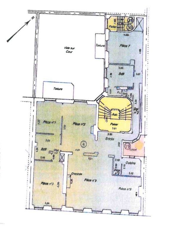
Situé au 4e étage avec ascenseur dans un immeuble Haussmanien en pierre de taille au coeur du triangle d'or et à proximité immédiate du parc Monceau.
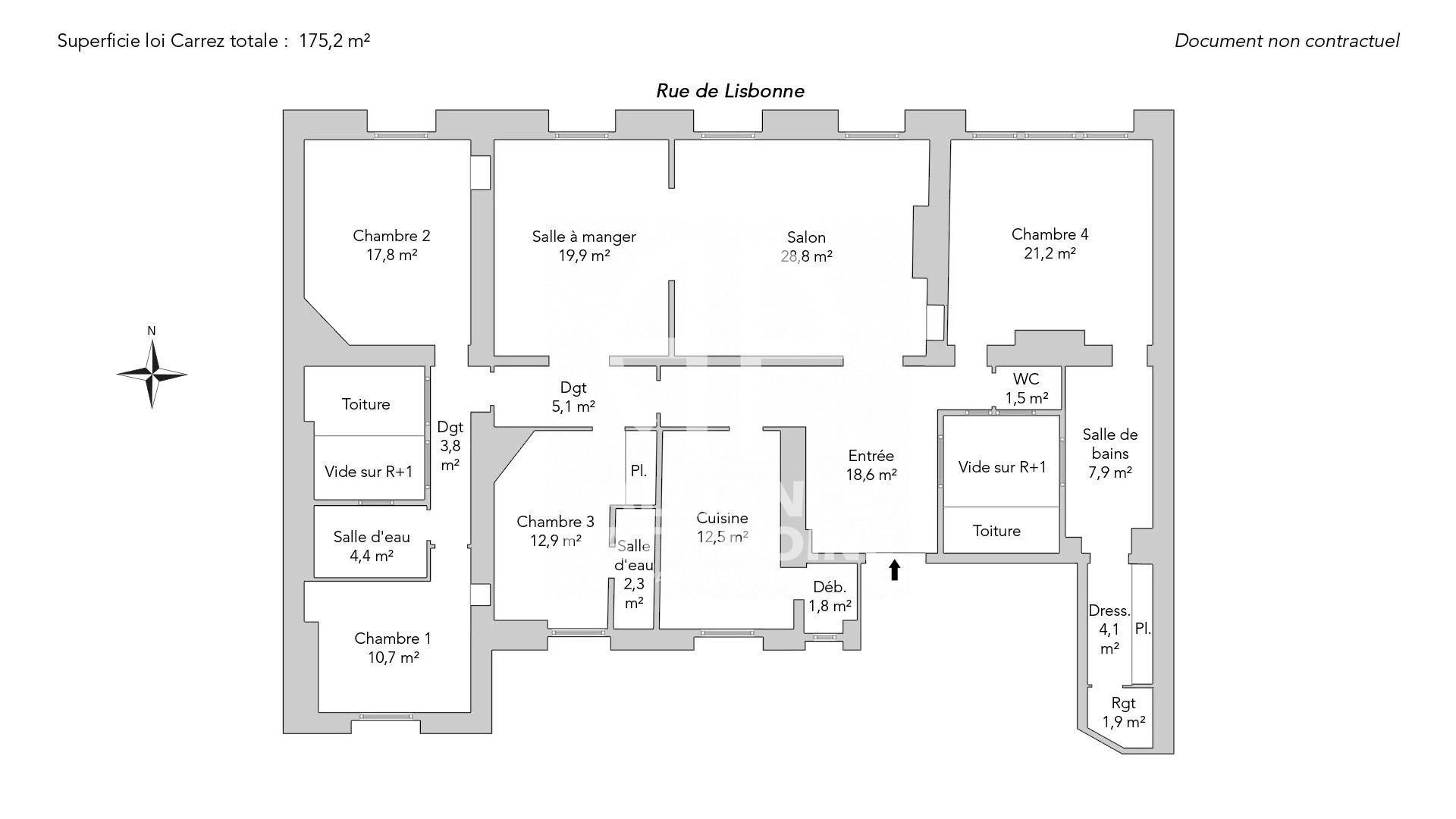
Cet appartement donnant sur l'avenue BEAUCOUR et sur cour, en étage élevé, traversant, baigné de lumière dans le plus pur style Haussmanien (très belle hauteur sous plafond, parquet massif en pointe de Hongrie) se compose d'une entrée desservant un vaste salon/salle à manger, d'un coin cuisine équipée et aménagée, des WC indépendants, de trois chambres spacieuses dont une suite parentale, d'une seconde salle de bains et de multiples rangements.
Deux chambres dites ' de bonne ' situées à l'etage supérieur font partie intégrante de ce lot. Egalement deux cagibis dont un en tant que jouissance privative complètent cet ensemble.
Il est possible de louer un stationnement.
Les informations sur les risques auxquels ce bien est exposé sont disponibles sur le site Géorisques : www.georisques.gouv.fr
Honoraires inclus de 4.81% TTC à la charge de l'acquéreur. Prix hors honoraires 2 700 000 . Dans une copropriété de 1 lots. Aucune procédure n'est en cours. Logement à consommation énergétique excessive : Classe énergie F, Classe climat F Montant estimé des dépenses annuelles d'énergie pour un usage standard : entre 3650.00 et 3651.00 sur les années 2021, 2022 et 2023 (abonnements compris). Les informations sur les risques auxquels ce bien est exposé sont disponibles sur le site Géorisques : georisques.gouv.fr.
Votre conseiller La Petite Agence : Corentin Gianerini Agent commercial (Entreprise individuelle) RSAC 853 220 168