Appartement familial lumineux et soigné avec espace extérieur
Paris 75016
0
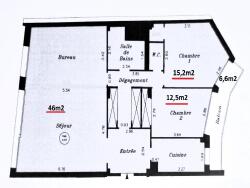
<p>Paris 16e - Secteur GARIGLIANO Dans un immeuble ENTRETENU avec GARDIEN, un appartement situé en étage élevé avec ASCENSEUR. Baigné de LUMIERE et profitant d'une absence de VIS-A-VIS, il vous offre un vaste séjour de 46m2 et deux grandes chambres SUR COUR avec la possibilité de créer une TROISIEME CHAMBRE par la pose d'une simple cloison. Ses nombreux RANGEMENTS et ses prestations SOIGNEES finiront par vous combler. Aucune procédure dans la copropriété. Provisions mensuelles sur charges de copropriété : 550€ Nous vous informons que conformément à l'article L 561-5 du Code monétaire et financier, une pièce d'identité vous sera demandée avant chaque visite. Le syndicat des copropriétaires ne fait l'objet d'aucune procédure menée sur les fondements des articles 291-A et 29-1 de la loi du 10 juillet 1965 et de l'article L 615-6 du Code de la construction et de l'habitation. « Les informations sur les risques naturels auxquels ce bien et exposées sont disponibles sur le site Géorisques : géorisques.gouv.fr.» Toutes les offres seront transmises au vendeur, lequel restera libre dans la sélection de l'offre à laquelle il entend donner suite. Une Lettre d'intention d'achat ne constitue pas une offre ferme et définitive au sens de l'article 1114 du Code Civil.</p>
103 m²
9 546 €
5
3
Consommations énergétiques
Logement économe
195
Logement énergivore (kWhEP/m2/an)
Émissions de gaz à effet de serre
Faible émission de GES
60
Forte émission de GES(kgeqCO2/m2/an)
Contact Me Lydia PICOTEIRO BETTENCOURT
Contacter gratuitement à l'aide du formulaire ci-dessous.