APPARTEMENT FAMILIAL TRAVERSANT AVEC GARAGE ET CAVE
Caluire-et-Cuire 69300
0
Honoraires à la charge du vendeur.
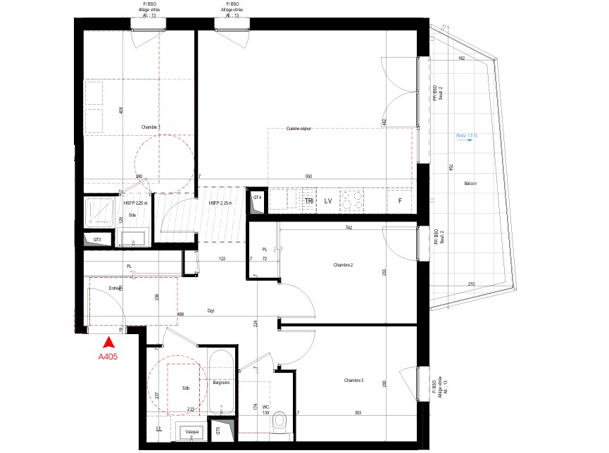
Dans un environnement calme et recherché de Caluire-et-Cuire 69300, au 60 rue Pierre Brunier, venez découvrir ce bel appartement traversant de 107,40 m², situé dans une résidence bien entretenue. Spacieux, lumineux et bien pensé, il offre un cadre de vie idéal pour une famille.
L'entrée mène à une cuisine indépendante ainsi qu'à un grand séjour baigné de lumière, avec un accès direct au premier balcon. Côté nuit, vous trouverez quatre chambres confortables. Deux d'entre elles donnent accès au second balcon, tandis qu'une troisième s'ouvre sur le premier balcon, partagé avec le séjour. L'appartement comprend également une salle de bain, une salle d'eau, et de nombreux espaces de rangement, très pratiques au quotidien.
Une cave et un garage fermé en sous-sol de 13 m² complètent ce bien.
La résidence offre également un cadre agréable avec des espaces verts bien entretenus et un terrain de tennis, accessible aux copropriétaires, pour profiter pleinement des extérieurs. Proche des commerces, des écoles et des transports, tout en étant à l'écart de l'agitation, cet appartement offre un excellent compromis entre confort et praticité. L'école des Chartreux se trouve à quelques minutes à pied, un atout pour les familles avec enfants. Les transports en commun sont facilement accessibles : la ligne de bus C1 est à environ 4 minutes à pied, offrant une liaison rapide vers Lyon Part-Dieu. La station de métro Cuire (ligne C) est accessible en une dizaine de minutes, permettant un accès direct à la Croix-Rousse et au centre-ville de Lyon.
Pour plus d'informations ou pour organiser une visite, contactez Émilie Pernelle au 06 34 66 46 53.
Honoraires à la charge du vendeur. Dans une copropriété de 113 lots. Quote-part moyenne du budget prévisionnel 4 506 /an. Aucune procédure n'est en cours. Classe énergie C, Classe climat C Montant estimé des dépenses annuelles d'énergie pour un usage standard : entre 1485.00 et 2009.00 sur les années 2021, 2022 et 2023 (abonnements compris). Les informations sur les risques auxquels ce bien est exposé sont disponibles sur le site Géorisques : georisques.gouv.fr.
Votre conseiller 5EME ELEMENT IMMOBILIER : Gérante - Emilie PERNELLE Carte T CPI69012016000006351 RCP 53483258