Appartement Givors 5 pièces Dernier Etage Terrasse
Givors 69700
0
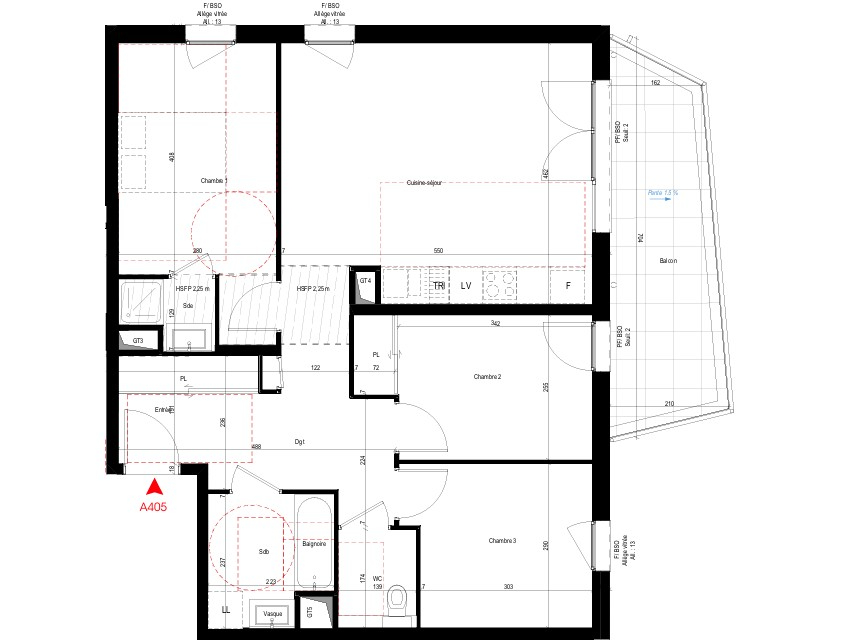
Prix en TVA réduite Givors, à la limite de Grigny, à proximité du palais des sports, je vous propose à la vente ce très bel appartement de type T5 de 125,50m², comme une maison sur le toit avec sa terrasse de 110m² dans une prochaine résidence de standing aux dernières normes comprenant : une entrée, un séjour avec cuisine ouverte, quatre chambres, une salle de bain, une salle d'eau et 2 WC. L'appartement est vendu avec deux places de parking en sous-sol Isolation phonique et thermique renforcé, faibles charges. Visuel non contractuel Merci de contactez Grégory pour plus d'informations au O6.69.26.64.26 Copropriété de 73 lots - dont 73 lots habitation. Charges annuelles : 1800 euros.