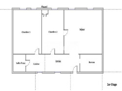
APPARTEMENT, 3 Pièces, 89m2, 36300 LE BLANC Idéalement situé en Hyper-Centre, au 1er d'un immeuble de 2 étages, vaste appartement comprenant : - Entrée donnant sur un chaleureux séjour de 25m2 avec espace bureau de 7m2 derrière verrière (authenticité préservée avec jolis parquets bois). - 2 grandes chambres lumineuses de 16 et 21m2. - couloir avec cuisine, desservant la salle d'eau/wc. - Petit toit exterieur accessible depuis courette intérieure. Chauffage electrique, double vitrage, Vmc. DPE 'E' (date du diagnostic 18/05/2025) Copropriété : Pas de procèdure en cours, Nombre de lots : 4, Foncier 850/an. Idéal 1er achat ou investisseurs.., à visiter SANS TARDER !!! Honoraires charge vendeur. Chers confrères de l'immobilier, si vous avez des clients, je coopère ! LifeHome Immobilier, DUMIOT Mathieu, 06 07 89 85 53 Agent commercial (Entreprise individuelle), RSAC 887 760 510 Tribunal de Châteauroux
Honoraires à la charge du vendeur. Dans une copropriété de 4 lots. Quote-part moyenne du budget prévisionnel 200 /an. Aucune procédure n'est en cours. Classe énergie E, Classe climat B Montant estimé des dépenses annuelles d'énergie pour un usage standard : entre 1800.00 et 2480.00 sur les années 2021, 2022 et 2023 (abonnements compris). Les informations sur les risques auxquels ce bien est exposé sont disponibles sur le site Géorisques : georisques.gouv.fr.
Votre conseiller lifehome IMMO : Mathieu DUMIOT Agent commercial (Entreprise individuelle) RSAC 887 760 510. Chers confrères professionnels de l'immobilier, vous avez des clients ? Contactez-moi, je coopère.
89 m²
640 €
25 m²
3
2
1
1
Oui (4 lots)
Consommations énergétiques
Logement économe
262
Logement énergivore (kWhEP/m2/an)
Émissions de gaz à effet de serre
Faible émission de GES
8
Forte émission de GES(kgeqCO2/m2/an)
Contact Mathieu DUMIOT
Contacter gratuitement à l'aide du formulaire ci-dessous.