Pénates & Associés vous présente une opportunité d'investissement exceptionnelle au coeur de Rouen.
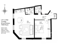
Situé au 1er étage d'un immeuble de caractère au 60 rue d'Amiens, cet appartement de type 2 d'environ 47 m² se compose d'une entrée, d'une pièce de vie lumineuse, d'une chambre, d'une salle d'eau et de toilettes indépendantes.
L'appartement et l'immeuble sont entièrement refait à neuf. L'immeuble est situé en hyper centre ville de Rouen, à proximité immédiate de la place saint Marc, du CHU et de la place des Carmes.
Proposé au prix de 236 782 HAI, ce bien comprend 99 202 de travaux éligibles aux dispositifs fiscaux Malraux ou déficit foncier, offrant ainsi une opportunité de valorisation et d'optimisation fiscale particulièrement intéressante.
Livraison prévue 2ème trimestre 2024.
Honoraires à la charge du vendeur. Dans une copropriété de 9 lots. Aucune procédure n'est en cours. Classe énergie C, Classe climat A Montant estimé des dépenses annuelles d'énergie pour un usage standard : entre 570.00 et 830.00 sur les années 2021, 2022 et 2023 (abonnements compris). Les informations sur les risques auxquels ce bien est exposé sont disponibles sur le site Géorisques : georisques.gouv.fr.