Goodshowcase

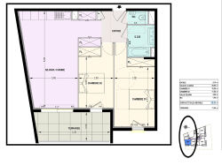
Vente appartement 3 pièces
399 000 €

Annonces similaires

Vente appartement

Le Cannet 06110 - 0

385 000 €

...Bâtiment RT2012 et livrable dans quelques mois...

Voir l'annonce

Vente appartement

Le Cannet 06110 - 0

369 000 €

...Et 2 chambres avec placards incorporés , une vraie SDBAIN , un WC séparé , un placard dans...

Voir l'annonce

Vente appartement

Le Cannet 06110 - 0

329 900 €

...Il se compose d'un séjour lumineux ouvrant sur une terrasse arborée exposée Est, ainsi que d'une...

Voir l'annonce

Vente appartement

Le Cannet 06110 - 0

349 000 €

...69 m² avec 2 terrasses pour un total de 15...

Voir l'annonce

Vente appartement

Le Cannet 06110 - 0

370 000 €

...Et 2 chambres avec placards incorporés , une vraie SDBAIN , un WC séparé , un placard dans...

Voir l'annonce