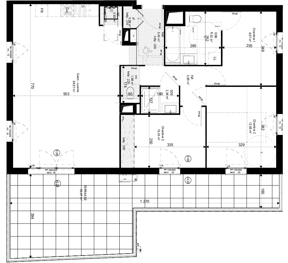
A Lentilly, à proximité immédiate du centre, je vous propose à la vente cet appartement de 3 pièces avec Terrasse aux dernières normes comprenant : une entrée, un séjour avec cuisine ouverte donnant sur la terrasse de 13m², deux chambres, une salle de bain et un WC. L'appartement est vendu avec une place de parking double en sous-sol. Isolation phonique et thermique renforcés, faibles charges. Visuel non contractuel. Merci de contacter votre conseiller Grégory pour plus d'informations Copropriété de 32 lots - dont 32 lots habitation. Charges annuelles : 1200 euros.