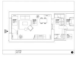
Au coeur d'un quartier dynamique et à proximité de toutes les commodités à pied, venez découvrir cette maison atypique et entièrement rénovée au design apuré !
Dans un esprit loft, le bien comprend : une vaste pièce à vivre avec de nombreux rangements discrets, une cuisine aménagée et équipée (plaques, four, hotte) et un WC (point d'eau pour une machine à laver).
L'étage, accessible par un escalier suspendu, se compose d'une mezzanine avec de nombreux placards, d'une salle d'eau (douche, WC, meuble vasque) et de deux chambres avec placard.
En annexe, un garage attenant à la maison.
Les informations sur les risques auxquels ce bien est exposé sont disponibles sur le site Géorisques : www. georisques. gouv. fr (4.23 % honoraires TTC à la charge de l'acquéreur.)
73 m²
5 068 €
35 m²
3
2
1
1
1
Aménagée
Oui
Consommations énergétiques
Logement économe
152
Logement énergivore (kWhEP/m2/an)
Émissions de gaz à effet de serre
Faible émission de GES
28
Forte émission de GES(kgeqCO2/m2/an)
Contact BRAS IMMOBILIER
Contacter gratuitement à l'aide du formulaire ci-dessous.