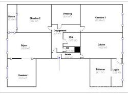
Appartement de 80 m² avec balcon dans une résidence récemment rénovée, comprenant entrée, séjour, cuisine équipée, 3 chambres, salle de bains, wc.
Chauffage gaz et climatisation au salon.
VENTE AVEC LOCATAIRE EN PLACE depuis 05/2024.
Charges annuelles 2025 : 1 660 euros avec eau chaude et chauffage.
Classe énergie : C
Honoraires charge vendeur.
Des questions sur le financement ? Nous vous accompagnons dans votre démarche auprès de professionnels : courtiers ou banques.
Jean MORIN Immobilier, 04 75 55 77 00.
Eric ROLLAND, Agent Commercial Indépendant, 06 11 95 50 50.
Les informations sur les risques auxquels ce bien est exposé sont disponibles sur le site Géorisques : www.georisques.gouv.fr
Honoraires à la charge du vendeur. Dans une copropriété de 1 lots. Aucune procédure n'est en cours. Classe énergie C, Classe climat C Montant moyen estimé des dépenses annuelles d'énergie pour un usage standard, établi à partir des prix de l'énergie de l'année 2021 : entre 860.00 et 1220.00 . Les informations sur les risques auxquels ce bien est exposé sont disponibles sur le site Géorisques : georisques.gouv.fr.
Votre conseiller JEAN MORIN IMMOBILIER : Eric ROLLAND Agent commercial (Entreprise individuelle)
88 m²
966 €
5 m²
19 m²
4
3
1
1 (séparé)
3
139.00 € / mois
1 (5 m²)
Oui
Oui (1 lots)
Consommations énergétiques
Logement économe
129
Logement énergivore (kWhEP/m2/an)
Émissions de gaz à effet de serre
Faible émission de GES
26
Forte émission de GES(kgeqCO2/m2/an)
Contact Jean Morin Immobilier
Contacter gratuitement à l'aide du formulaire ci-dessous.