Appartement lumineux 5 pièces en duplex avec terrasse, bords
Noisy-le-Grand 93160
0
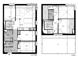
Superbe appartement de 5 pièces en duplex vous invite à savourer un art de vivre unique, entre confort moderne et ambiance village. Imaginez vos journées baignées de lumière, vos soirées sur une vaste terrasse de 36 m2 surplombant les coteaux, et vos moments de détente dans un séjour spacieux de plus de 31 m2. - surface habitable de 104,7 m2 - 4 chambres - 1 salle de bain - 1 salle d'eau - 2WC séparés - combles aménageables - agencement intelligent et traversant garantit une luminosité naturelle toute la journée 1 place de parking complète ce bien Situé dans un quartier recherché, l'appartement bénéficie d'un environnement exceptionnel : venelles arborées, jardins partagés, atelier collectif, recyclerie, et accès direct aux bords de Marne. À proximité immédiate, vous trouverez écoles, crèches, commerces, boulangerie, restaurants, et deux lignes de bus reliant les gares RER de Bry-sur-Marne, Neuilly-Plaisance et Noisy-Mont d'Est. Le tout dans un cadre éco-responsable, au sein d'un projet lauréat des 100 quartiers innovants et écologiques d'Île-de-France. Ne manquez pas cette opportunité rare d'habiter un appartement lumineux, spacieux et fonctionnel dans un quartier prisé et proche de toutes les commodités. Contactez-nous dès maintenant pour organiser une visite et laissez-vous séduire par votre futur lieu de vie Pas de frais d'agence, Frais de notaire réduits Photos d'ambiance, non contractuelles
Duplex
104 m²
5 481 €
5
4
1
1
2
1 sur 2
1
1
Consommations énergétiques
Logement économe
71
Logement énergivore (kWhEP/m2/an)
Émissions de gaz à effet de serre
Faible émission de GES
10
Forte émission de GES(kgeqCO2/m2/an)
Contact AMAR Denis
Contacter gratuitement à l'aide du formulaire ci-dessous.