À Rezé, découvrez ce très bel appartement lumineux de 62,14 m² situé au 9 ème étage avec ascenseur, bénéficiant d'une vue dégagée à 270° sur Nantes et de volets roulants électriques sur l'ensemble des ouvertures.
L'appartement se compose de :
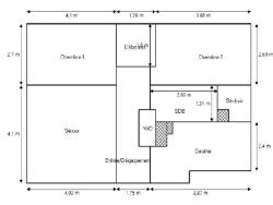
- Un séjour de 16,79 m²
- Deux chambres de 10,71 m² et 11,04 m²
- Une salle de bains avec baignoire et paroi de douche (3,26 m²)
- Un grand placard vestiaire (3,16 m²)
- Une cuisine moderne aménagée et équipée (9 m²)
- Une arrière-cuisine / buanderie (1,82 m²)
- Un couloir central (6,97 m²)
- Un WC indépendant (1,21 m²)
Sont également inclus :
- Une place de parking extérieure
- Une cave en sous-sol de 5,30 m²
Localisation :
Situation idéale : Lidl à 1 min à pied, place du 8 Mai à 2 min, centre commercial Leclerc Atout Sud à 1 min en voiture. Très bonne desserte par le réseau de transport Naolib
Les informations sur les risques auxquels ce bien est exposé sont disponibles sur le site Géorisques : www.georisques.gouv.fr
62 m²
2 323 €
4
2
1
1
9 sur 11
1974
Oui
Consommations énergétiques
Logement économe
242
Logement énergivore (kWhEP/m2/an)
Émissions de gaz à effet de serre
Faible émission de GES
52
Forte émission de GES(kgeqCO2/m2/an)
Contact DIGIMO
Contacter gratuitement à l'aide du formulaire ci-dessous.