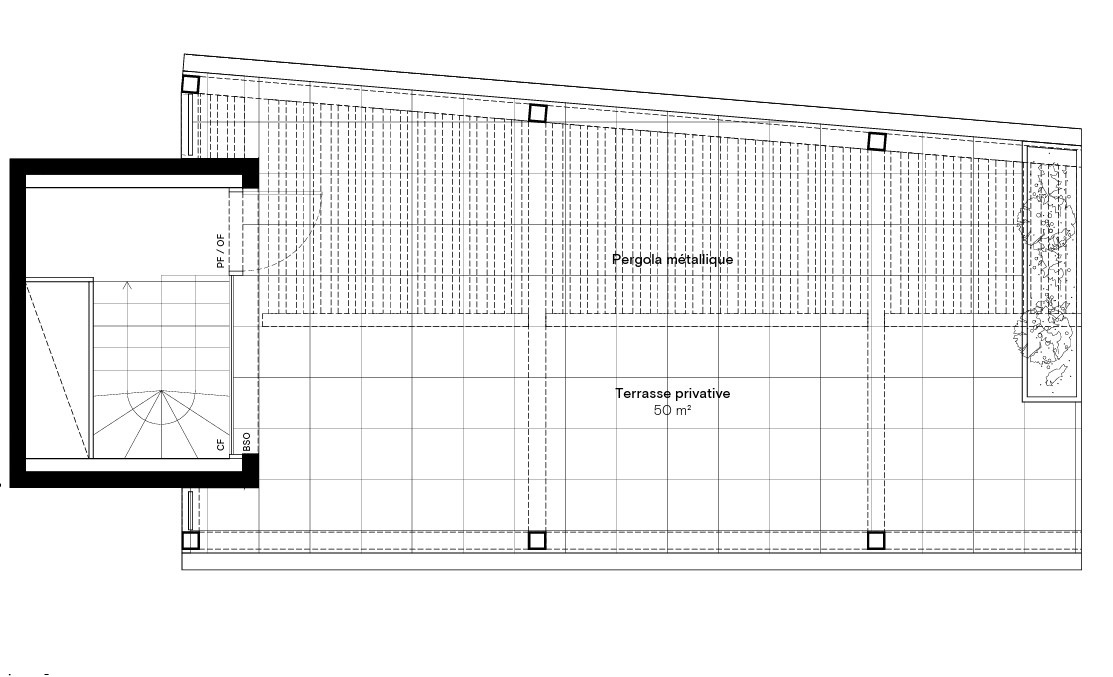
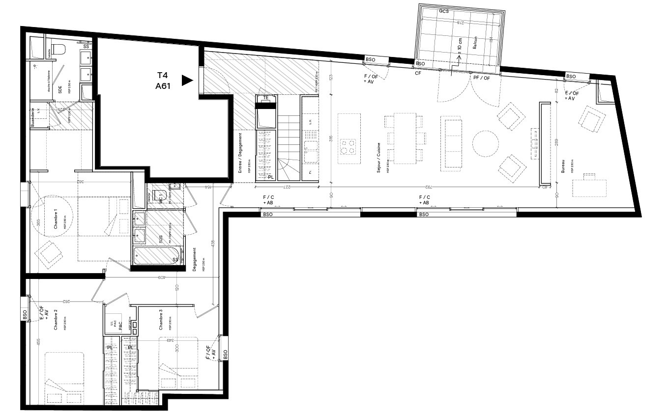
Dernière opportunité ! A Lyon 4°, au Coeur de la Croix Rousse, à proximité des Bus et commerces et Métro, je vous propose à la vente ce Magnifique appartement de type T5 composé d'une pièce à vivre de 48m² avec sa cuisine américaine donnant sur une magnifique terrasse de 157m² et une autre de 26m². L'appartement dispose également de 3 chambres avec salle d'eau et salle de bains, un grand espace bureau et d'un wc séparé. L'appartement est vendu avec 2 garages Bâtiment basse consommation Contactez Grégory pour plus d'informations Visuel non contractuel Copropriété de 19 lots - dont 19 lots habitation. (Pas de procédure en cours). Charges annuelles : 2000 euros.