33700 MÉRIGNAC - Secteur BEUTRE -
Appartement T2 de 2015 en rez-de-chaussée au CALME, au sein d'une résidence SÉCURISÉE et TRÈS PROPRE, avec local vélo commun.
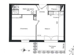
Votre futur logement se compose d'une entrée avec placard donnant sur un séjour avec cuisine ouverte d'env 20 m2, une chambre avec placard d'env 12,50 m2, ainsi qu'une salle d'eau avec wc d'env 4,50 m2.
Une terrasse extérieure exposée EST d'env 5 m2 et une place de parking privative complètent l'appartement.
Chauffage Gaz (chaudière individuelle)
Faibles charges de copropriété: 43 euros/mois
TF: 800 euros/an
Idéal primo-accédant ou investisseur!
A DÉCOUVRIR RAPIDEMENT !
Prix: 169 900 euros HAI. Les honoraires sont à la charge du vendeur.
Pour plus de renseignements ou organiser une visite, veuillez contacter localement votre conseiller immobilier, Loïs LAMIREAU au 07.83.36.41.18 ou l.lamireau@proprietes- privees .com , agissant sous le statut d'agent commercial RSAC 844968 / RCS BORDEAUX 844 968 107 auprès de la SAS PROPRIETES-PRIVEES, 44 allée des Cinq continents ZAC Le Chêne Ferré Bât C 44140 Vertou.
Le professionnel vous conseille, garantit et sécurise votre projet immobilier. Mandat n° 413594
***Estimation gratuite de votre bien (maison, appartement, immeuble, terrain, . . .)***
Loïs LAMIREAU (EI) Agent Commercial - Numéro RSAC : BORDEAUX 844968107 - .
36 m²
4 719 €
2
1
1
Oui
Consommations énergétiques
Logement économe
71
Logement énergivore (kWhEP/m2/an)
Émissions de gaz à effet de serre
Faible émission de GES
12
Forte émission de GES(kgeqCO2/m2/an)
Contact Loïs LAMIREAU
Contacter gratuitement à l'aide du formulaire ci-dessous.