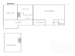
Situé au deuxième étage, dans une bâtisse construite au 14ème siècle par les Monthouz, famille vassale des Comtes de Genève, ce duplex de126m2 (150m2 au sol) offre un paisible environnement, à 10 minutes du centre ville d'Annecy, sur la route de Genève. La bâtisse, très bien conservée et entretenue, bénéficie d'une vue dégagée sur les montagnes du Semnoz, du Parmelan et du Mont-Veyrier. L'appartement se compose d'une entrée, avec coin buanderie, d'une pièce de vie de plus de 43m2 , avec cuisine équipée ouverte sur le séjour, de trois belles chambres, dont une à l'étage, avec salle de bains adjacente, et d'une alcôve, configuration idéale pour une famille ou envisager un espace de travail additionnel. Une salle de douche et un WC complètent le niveau inférieur. Des tommettes des parties communes aux poutres d'origine, avec une hauteur sous plafond de 3,50m, l'intérieur garde toute l'authenticité et le charme des maisons fortes. Pour compléter ce cadre de vie privilégié , les copropriétaires bénéficient d'un agréable jardin commun. . En annexes, un local à vélos et une place de parking. La proximité des écoles, des transports et de l'autoroute font de cet appartement un lieu de vie recherché pour ceux qui souhaitent allier praticité et natute. Les informations sur les risques auxquels ce bien est exposé sont disponibles sur le site Géorisques: georisques.gouv.fr
Honoraires à la charge du vendeur. Dans une copropriété de 48 lots. Quote-part moyenne du budget prévisionnel 2 600 /an. Aucune procédure n'est en cours. Classe énergie D, Classe climat A Montant estimé des dépenses annuelles d'énergie pour un usage standard : entre 1790.00 et 2440.00 sur les années 2021, 2022 et 2023 (abonnements compris). Les informations sur les risques auxquels ce bien est exposé sont disponibles sur le site Géorisques : georisques.gouv.fr.