Appartement Montauban De Bretagne 4 pièce(s) 106 m2
Montauban-de-Bretagne 35360
0
Honoraires à la charge de l'acquéreur (Prix hors honoraires : 299000 euros).
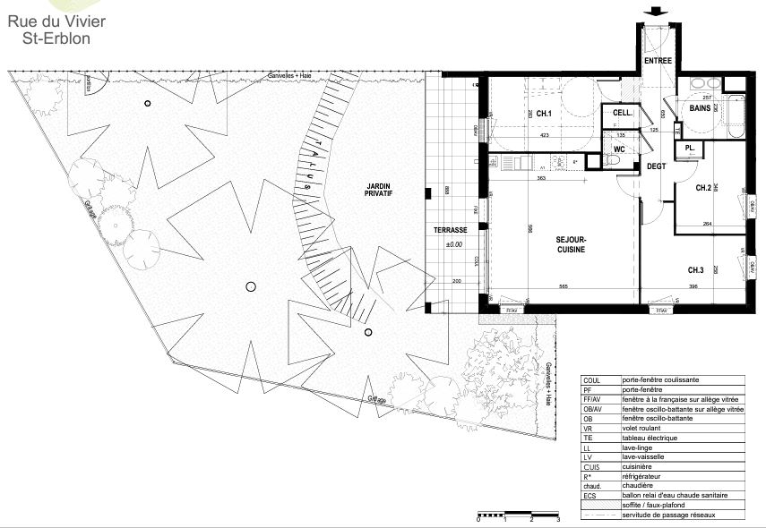
Appartement Montauban De Bretagne CENTRE 4 pièces d'environ 106 m² ! IDEAL INVESTISSEUR car occupé par un LOCATAIRE : EN VENTE CHEZ ALLIANCE IMMOBILIER Rez-de-chaussée / 2 - et comprenant : - une entrée (placard), salon / séjour / cuisine (39,63 m² env.), une suite parentale comprenant une salle d'eau (16,6 m² env.), deux chambres (11,31 + 16,67 m² env.), salle de bains (8,45 m² env.), buanderie (4,45 m² env.), wc, garage et parking. Terrasse de 26 m² et un jardin de 150 m² ! Dans copropriété de 10 lots dt 6 habitations. Charges annuelles : nc. www.georisques.gouv.fr photos non contractuelles. Alliance IMMOBILIER 2 rue de Romillé 35360 Montauban de Bretagne Hugo GEORGELIN : 06 33 17 65 08
Honoraires inclus de 4.28% TTC à la charge de l'acquéreur. Prix hors honoraires 299 000 . Dans une copropriété de 10 lots. Aucune procédure n'est en cours. Classe énergie C, Classe climat C Montant estimé des dépenses annuelles d'énergie pour un usage standard : entre 1120.00 et 1570.00 sur les années 2021, 2022 et 2023 (abonnements compris). Les informations sur les risques auxquels ce bien est exposé sont disponibles sur le site Géorisques : georisques.gouv.fr.