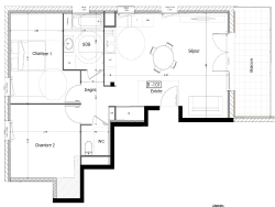
La résidence est située au Coeur de Myans, à proximité des commerces, écoles et transports, je vous propose à la vente ce très bel appartement avec Terrasse. Ce ravissant T3 saura vous séduire par sa situation, son séjour avec sa cuisine américaine donnant sur une très belle terrasse de 10,13m². Il est aussi composé d'une salle de bain, de deux chambres ainsi qu'un WC indépendant. Un garage en sous-sol est vendu avec l'appartement. Bâtiment basse consommation Contactez Grégory pour plus d'informations au O6.69.26.64.26 Visuel non contractuel Copropriété de 32 lots - dont 32 lots habitation. Charges annuelles : 1200 euros.