Appartement NEUF à vendre Dol De Bretagne 3 pièce(s) 65.12 m2
Dol-de-Bretagne 35120
0
Honoraires à la charge du vendeur.
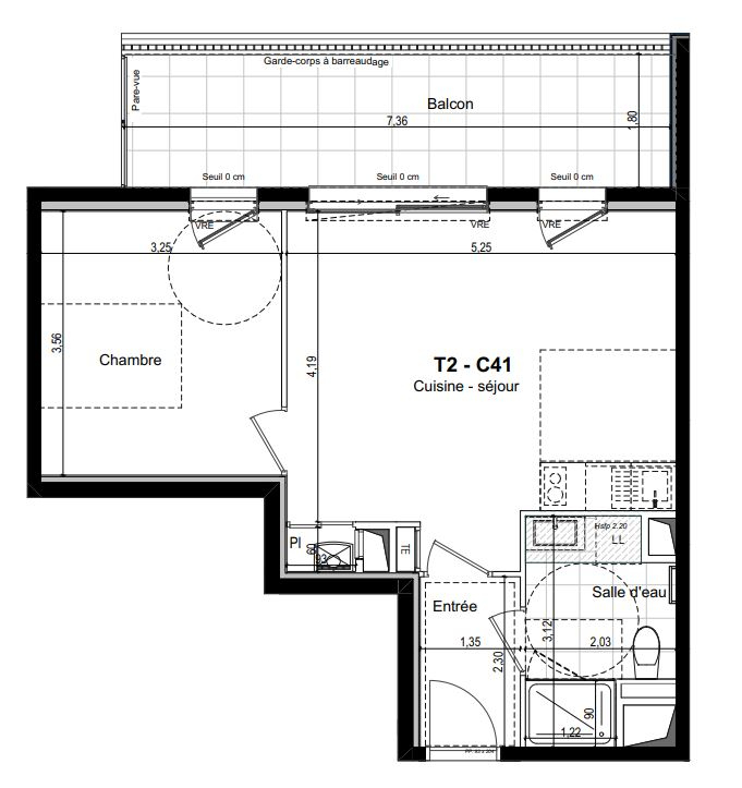
Réf: M-A 17106, 229 000 euros * DOL DE BRETAGNE APPARTEMENT T3 PROGRAMME NEUF A proximité du centre, dans une résidence composée de 29 logements, dans un environnement calme et boisé, appartement de type 3, répondant aux normes énergétiques actuelles, situé au 1er étage, d'une surface de 65m² avec balcon de 12m², avec 2 places de parking. La pièce de vie ouvrant sur le balcon est exposé Sud-Est, lui offrant une agréable luminosité. 2 chambres de 10.9m² composant l'espace nuit. 2 places de parkings privatives et local vélos communs. Livraison 2026. D'autres appartements de Type 3 sont disponibles, contactez nous ! Toutes nos annonces sur www.cabinetchateaubriand.com * honoraires charge vendeur Copropriété de 93 lots - dont 29 lots habitation.(Pas de procédure en cours).