Appartement neuf 2 chambres à vendre à Étaples avec Agence C
Étaples 62630
0
Honoraires à la charge du vendeur.
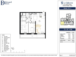
Placement immobilier de qualité avec cet appartement accompagné de 2 chambres à Étaples. Dans un programme immobilier neuf prévu pour 2026. Il s'agit d'un appartement se trouvant au 1er étage ; il y a un ascenseur. Offrant 60.47m2, l'espace intérieur comprend un espace cuisine, un espace nuit comprenant 2 chambres, un coin salon de 30.13m2 et une salle de bain. Le double vitrage garantit le calme du lieu. A reçu le label de bâtiment à basse consommation énergétique. Pour profiter de l'extérieur, le bien vous propose un balcon d'une surface de 11.14m2, ce qui élève la surface de l'ensemble à 71.61m2. Il vous fait bénéficier d'un parking pour faciliter le stationnement. Le prix de vente minimum s'élève à 234 000 EUR. Entrez rapidement en contact avec Agence Centrale si vous voulez voir cette habitation. Les informations sur les risques auxquels ce bien est exposé sont disponibles sur le site Géorisques : www.georisques.gouv.fr