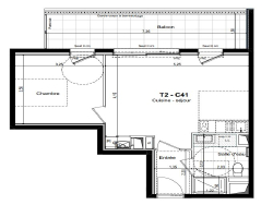
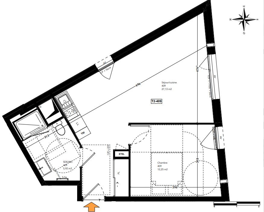
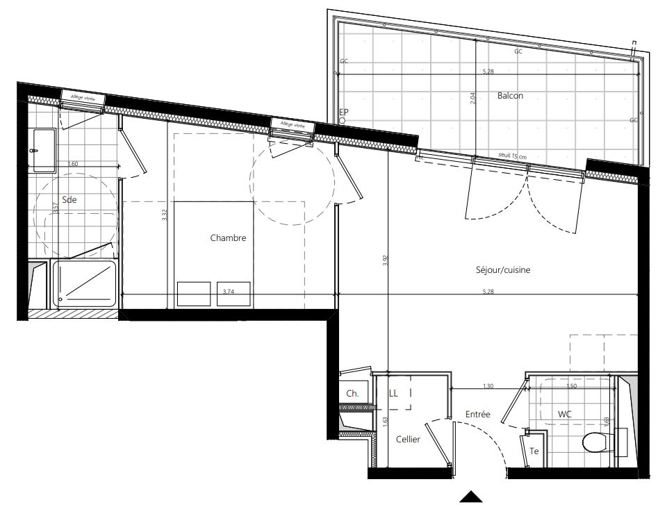
Imaginez l'emblématique baie du Mont Saint-Michel, la magnifique Côte d'Emeraude, la pittoresque Pointe du Grouin, les savoureuses et célèbres huîtres de Cancale. N'imaginez plus, profitez pleinement de ce que peut offrir un appartement situé au milieu de ce décor de rêve, à 1 200 mètres de la mer. La résidence Istral à Cancale est un programme immobilier neuf de seulement 25 appartements répartis sur trois niveaux. Selon le logement choisi, vous disposerez d'une place de stationnement en sous-sol ou en aérien. Les deux étages sont desservis par un ascenseur. Il ne reste plus que 7 appartements à disposition (2, 3 ou 4 pièces) ; la gamme de prix allant de 239 700 EUR (44 m2) à 440 400 EUR (pour 87,75 m2). Quelle que soit la grandeur, l'équipement est identique : fenêtres PVC double vitrage, volets roulants électriques, chauffage électrique, sèche-serviettes chauffant, interphone ; l'ensemble respectant la règlementation environnementale 2020. La livraison est prévue dans le courant du 4ème trimestre 2025. ET PROFITEZ DE 5 000 EUR DE REMISE PAR PIECE (10 000 EUR POUR LES T2, 15 000 EUR POUR LES T3, 20 000 EUR POUR LES T4) ET LES FRAIS DE NOTAIRE OFFERTS ! OFFRE LIMITEE EN NOMBRE VALABLE JUSQU'AU 14 JUILLET 2024. Ces appartements vous sont proposés par l'agence de l'iMMobilier, nom commercial de l'Entreprise Individuelle Rouland Sylvain, agent commercial mandataire du réseau Expertimo. Les honoraires sont à la charge du vendeur. Cette annonce vous est proposée par ROULAND Sylvain - EI - NoRSAC: 449 474 840, Enregistré à Greffe du tribunal de commerce de RENNES - Annonce rédigée et publiée par un Agent Mandataire -