Les charges de location sont prévisionnelles mensuelles avec régularisation annuelle.
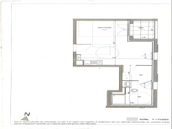
En plein coeur du village de Lozanne (à proximité immédiate des comodités: écoles, commerces et gare..), dans une résidence récente et sécurisée, appartement de 31 m2 habitables (30.98 m2 loi carrez) au 2ème et dernier étage comprenant 1 grande pièce ouvrant sur une loggia de 3 m2, 1 espace rangement/dressing et une salle d'eau avec wc. Lumineux et fonctionnel, vous n'avez plus qu'à poser vos valises. Plus une place de stationnement. Loyer : 535 EUR / mois CC (dont provisions sur charges de 40 EUR). Honoraires d'agence : 415.80 EUR TTC. Disponible de suite. Plus de photos et renseignements sur cet appartement ou la commune de Lozanne (transports, écoles, commerces..) sur notre site du cabinet buisantin ou Jean-Christophe LATUILIERE : 06.20.08.29.25.
31 m²
2 m²
21 m²
1
1
1
2 sur 2
415.8 %
40 € / mois
2019
Est
1 (2 m²)
Oui
1
Oui
Consommations énergétiques
Logement économe
170
Logement énergivore (kWhEP/m2/an)
Émissions de gaz à effet de serre
Faible émission de GES
45
Forte émission de GES(kgeqCO2/m2/an)
Contact LATUILIERE
Contacter gratuitement à l'aide du formulaire ci-dessous.